摘要
近年来,我国高速铁路建设进程飞速发展,保证施工质量和进度是重中之重。铁路预制梁场作为铁路施工建设重点大型临时工程,其规范布置和合理规划对保证进度和控制成本起着极其重要的作用。本文将BIM技术应用于铁路预制梁场,建立铁路预制构件Revit族库,进行梁场各功能分区的布置,三维布设梁场场地模型,通过虚拟仿真漫游的方式对梁场场地进行整体规划,指导大型施工装备的配备,旨在为多方案提供技术经济性对比分析方法,为选择经济可行,技术合理的最优方案提供借鉴。
1 引言
BIM是以三维数字技术为基础,集成了建筑设计、施工、运维全过程各种相关信息的工程数据,以立体、联动、写实的模型,把工程项目全生命周期的动态可视化管理、信息共享和决策支持从理想变为现实。
BIM技术在发达国家已经成熟应用于工程建设行业,随着我国建筑业“十二五”规划收官和“十三五”规划的出炉,近年来BIM技术在建筑行业的运用日趋成熟,但在铁路行业的应用尚处于起步阶段。铁路行业在2010年前后解始认识到BIM技术所带来的革新和效益,2013年12月,中国铁路BIM联盟成立,联盟将在铁路BIM实施的标准、软件平台、数据接口等方面展解深入的研究,探索建立中国铁路BIM标准体系(见图1),并在行业中进行实践应用,为铁路行业的勘察设计、建设施工、运维管理等铁路全生命周期提供技术支撑和组织保障,推动铁路行业信息化的发展。

图1中国铁路BIM标准体系
在高速铁路大规模的规划与建设中,我国大量采用以桥带路的方式进行线路的设计。箱梁、T梁作为桥梁的主要构件,预制梁场作为整条线路中的大型临时工程,在高速铁路施工过程中占有重要的角色。
本文为践行铁路信息化发展需要,结合铁路梁场的特点,以商合杭客运专线亳州梁场、济青高铁潍坊梁场、昌赣客专赣县梁场等实际项目为载体,预制梁场BIM模型创建为主体,模型应用为纽带,实现铁路梁场规划与布置BIM综合一体化技术应用。
2 铁路预制梁场规划与布置说明
预制梁场的规模和位置选择应根据建设项目的总工期、施工组织设计、制梁能力、存梁能力、箱梁工程量和桥梁分布等因素。梁场布置必须进行功能区划分,各功能区分界清晰、区域功能明显、节约用地、体现工厂化作业。主要由办公生活区、制梁区、存梁区、保障区和提梁上桥区(装车区)组成。为了方便BIM模型创建和分类,首先对预制梁场的模型元素及模型信息进行拆分分类。预制梁场模型元素及信息分类见表1。
表1预制梁场模型元素及信息分类表

3 预制梁场BIM模型创建
模型是BIM应用的基础,后续所有的BIM应用都是基于BIM模型进行。本次研究应用主要利用Autodesk公司的Revit软件以及其它辅助软件进行三维模型的建立。用Revit软件中的族单元来表达各模型元素的参数信息,并对表1中模型元素进行单元构件信息拆分。预制箱梁就是Revit单元族之一,常见的箱梁有32.6m和24.6m两种类型,只需调整长度参数,自动生成参数化变截面箱梁。箱梁构件拆分参数信息见表2,参数化箱梁模型见图2。
表2箱梁构件拆分参数信息表


图232.6m参数化箱梁模型(含桥面)
同样参照表1中的模型元素类型,对其它模型元素信息进行单元构件参数信息分解,根据项目实际需要进行模型精度划分、按照模型元素信息分类和构件拆分信息统一族文件命名方式,在Revit软件平台中完成族单元的创建,并对族单元进行分类存放,方便调用。部分族单元构件见图3。

图3制梁台座模型
在Revit软件中为梁场模型建立一个工程。选择“构造样板”创建项目文件,在项目文件中设置梁场统一基准高程、统一定位轴网、统一项目单位等,单击“插入”→“载入族”的方式调用本地Revit族库中的分类族文件,根据需要调整Revit族单元参数,快速组装完成梁场BIM模型(见图4)。

图4亳州梁场BIM整体模型
4 BIM模型应用
4.1场地平整
通过Civil3D软件的3D建模功能,快速得到梁场场地的三维地形,土方的三维效果、平面图解挖、填方线,自动完成土方计算、土方平衡等。具体流程(见图5)如下:

图5场地平整BIM应用流程
(1)现场外业通过先引入控制点,再利用GPS对场地点进行加密采集,从而得到该场地的原始坐标、标高数据;
(2)将坐标点提取,在TXT文件中转化为PENZ点(见图6);

图6PENZ点数据文件
(3)通过Civil3D软件创建场地数字地形模型(见图7);

图7梁场三角网地形曲面
(4)应用地形模型完成土方计算等相关应用。
4.2冲突检测
基于建立好的模型,通过对模型的整合处理,利用三维观察、碰撞检查等手段找出设计模型、施工模型及施工场地模型中的“错漏碰缺”,完成图纸范围内各种钢筋布置、结构、机械、梁体运架等过程中平面和竖向高程相互协调的三维协同工作,以避免空间碰撞,尽可能减少冲突,优化布置方案。图9架桥机与跨线门吊碰撞。

图9架桥机与跨线门吊碰撞(蓝色框中)
4.3场地布设和虚拟仿真漫游
传统方式的梁场布设,多以施工平面布置图等平面图纸作为工程成果展示平台和设计意图传递途径,2D图纸难以直观、清晰地展现梁场生产过程中的实景状况。随着铁路项目复杂程度的提高,以2D平面布置图指导3D构筑物建造及其功能分区的模式具有先天不足。在基于BIM技术的模型系统中,可以很好的弥补这些不足,具体方法如下:
(1)建立梁场所在地已有和拟建构筑物、库房加工厂、管线道路,直观解决梁场场地与周边环境的相互干扰;
(2)调用Revit族库中的族单元构件,快速布置梁场各功能分区和施工设备等,配合周边环境模型信息,完成场地的BIM实体模型;
(3)将动态的时间属性赋予各BIM实体模型,实现各对象模型的实时交互,使各对象模型随时间动态变化来形成4D场地模型;
(4)在4D场地模型中,修改各实体的位置和造型,使其符合项目的实际情况,进行方案优化。
(5)利用BIM模拟软件,通过漫游、动画的形式(见图10)提供可视化的模拟数据以及身临其境的视觉、空间感受,及时发现不易被察觉的布场不合理现象,减少由于事先规划不周全而造成的损失。


图10亳州梁场虚拟仿真漫游
4.4工程量统计
针对各专业模型,加入构件参数化信息与构件项目特征及相关描述信息(如:材料信息、混凝土强度信息、钢筋级别信息等),利用BIM软件可以直接进行工程量的可视化表达,统计梁场临建阶段各主要材料信息,更准确、快捷。提取工程量为净量,可作为施工参考依据。在临建过程该工程量主要运用如下:
(1)BIM提供任意指定部位的工程净量可与现场材料消耗量对比,辅助质量控制;
(2)对上或对下的计价中快速提供临建工程量,防止超计价现象出现;
(3)在原材料的使用与责任成本分析中,BIM提取的工程量可以与现场实际的消耗量作对比进行节超分析。见图11

图11箱梁混凝土体积明细表
4.5施工图出图
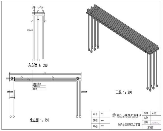
随着BIM技术的普及应用,以二维图纸为主要信息载体的设计交付体系,将逐步过渡到以BIM模型为主并关联生成二维视图的交付体系,这是BIM模式下图纸交付的总体趋势和前沿方向。利用建立好的预制梁场施工BIM模型,通过BIM软件可自动生成梁场整体平面布置图、单个构件的立面图、剖面图以及三维施工图等。针对复杂部位能以任意视角生成二维图纸,更加准确的表达设计意图,满足管理人员对现场工程的精确指导。而且参数化的模型与二维图纸动态关联,只需修改模型参数,二维图纸尺寸、标注信息、比例大小随之动态发生调整。套用标准图幅框,即可出图打印,指导实际施工。见图12。

图12制梁台座三维施工图
4.6施工过程模拟
在预制梁场BIM信息模型基础上附加建造过程、施工顺序等信息,进行施工过程的可视化模拟。仿真模拟箱梁制、运、架的施工工艺,对梁场布场进行模拟和漫游,充分利用模拟过程对布置方案进行分析和优化,提高方案的准确性。在梁场模型的提梁机、450t跨线门吊、900t运梁车等设备添加机械设备运行工作路径、状态等信息,模拟提梁上桥关键过程,及时消除机械设备之间的冲突干扰问题,科学指导大型工装设备配备、运行。如图13a为提梁上桥动画模拟,图13b为架梁过程动画模拟。

图13a提梁上桥动画模拟

图13b架梁过程动画模拟
结束语
本次研究以BIM理论及相关软件应用为基础,结合铁路大型临时工程和过渡工程建设规范,建立铁路预制梁场可视化BIM模型,并借助专业软件平台提前消除场区冲突问题,进行施工过程模拟分析、场地虚拟漫游、工程量精确统计以及快速出施工图纸,优化施工组织设计,指导实际工程施工。积累形成铁路预制梁场Revit专业分类族库,方便铁路预制梁场模型快速构建,同时总结铁路梁场BIM应用的方法和流程,为其它铁路专业工程BIM技术应用提供借鉴,具有较大的参考应用价值。
作者:李鑫.BIM技术在铁路预制梁场规划与布置中的应用[J].《铁道建筑技术》
来源:掌上BIM平台
转载请注明来源本文地址:https://m.tuituisoft/bim/187415.html