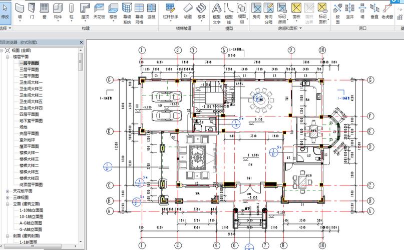
在Revit中创建平面图是一项重要的操作,它可以帮助我们将建筑设计转化为可视化的平面布局。下面是创建平面图的Revit操作指南。

第一步是打开Revit软件并选择“新建项目”。在新建项目对话框中,选择合适的项目模板,例如建筑设计模板。
接下来,我们需要创建一个新的平面图视图。在Revit的项目浏览器中,选择“平面图”选项卡,并点击“创建视图”按钮。在弹出的对话框中,选择要创建的视图类型,例如“平面”或“剖面”,然后点击“确定”按钮。
在新创建的平面图视图中,我们可以开始布局建筑元素。通过选择“构件”选项卡上的工具,例如墙体或柱子,我们可以在平面图中绘制建筑元素。在绘制建筑元素时,我们可以使用Revit的精确输入功能来确保尺寸和位置的准确性。
除了绘制建筑元素,我们还可以在平面图中添加文字注释和标注。在Revit的“注释”选项卡上,我们可以选择合适的注释工具,例如文字工具或标注工具。使用这些工具,我们可以为建筑元素添加注释和尺寸标注,使平面图更具可读性。
完成平面图的绘制后,我们可以保存并打印它。在Revit的菜单中选择“文件”>“保存”或使用快捷键Ctrl + S来保存平面图。如果需要打印平面图,可以选择“文件”>“打印”来打开打印设置对话框,然后根据需求设置打印参数并点击“打印”按钮。

总结来说,通过按照上述Revit操作指南的步骤,我们可以轻松地创建平面图。这项功能可以帮助建筑设计师将其设计可视化,并与团队成员和客户共享。
转载请注明来源本文地址:https://www.tuituisoft/blog/10037.html