首先我们应该在图纸模型中的模型(包括公民和机电专业),调整管道全面、添加预留孔完成前期准备工作到位,就像这样:

第一步
在建立了Ray-ReIT模型之后,必须注意在平面标记之前调整视图的比例。默认值是系统中的1:100。
第二步
调整后的比例来看,我们需要做一些平面设置在平面视图;
(I)调整“视图”范围,以显示当前绘图视图空间内的所有组件(或取消选中“地板”)
(2)对“机械设备”和“风管附件”进行了中等程度的调整。电缆桥、管道取消检查“中线”和“下降”,电缆桥及附件的详细级别设置为中等,透明度设置为30,风管、风管配件附件、风管衬里及绝缘层透明度为30套;
(3)根据项目颜色标准,对桥梁框架及附件进行滤色匹配;
(4)取消勾选结构框架(隐藏梁构件);
(5)视图中可见的“对象”的风格下模型对象线宽设置为“1”
(6)保证视图内只显示一套轴网。

注意:完成平面设置后,使用剪切视图、剪切区域查看和注释剪切命令调整范围框。将范围调整为仅可见的项目大小,不要太大。
第三步
完成上述工作后,由于需要将水、热和电分开,我们使用“复制视图”命令复制其他几个平面视图,并使用“复制与详细信息”命令。然后在每个视图中使用“过滤器”和“工作装置”,只显示水、暖气、电力等。
第四步
在平面视图并显示设定新的完成,添加注释,添加注释需要注意以下问题:
(1)视图名称和视图尺度要求下划线6mm模仿歌曲,宽度系数。
(2)管道标识字体:歌曲体,3mm,宽度系数定位尺寸,使用“对角线2.5mm罗马”标记。
(3)管线标注样式。
风管标识:系统缩写空间尺寸空间H“底部标高”
管道标签:系统+空间+ +空间大小+(开始迁移)
桥牌:类型名称+空间+维度+空间+(底部立面)。
圆形风管标记中心高度(起始偏移),标高标签要求单位米,保留两个小数点。根据2 d图纸添加注释的前缀或后缀。在编辑家庭中,取消选中“用组件旋转”,垂直对齐“中间”和水平对齐到“左”。注释前导箭头,并选择对角线3mm。
标高单位设置:
系统缩写或“类型说明”、“描述”和其他标识数据(简言之,按字母顺序)不再使用冗长的类型名称。
第五步
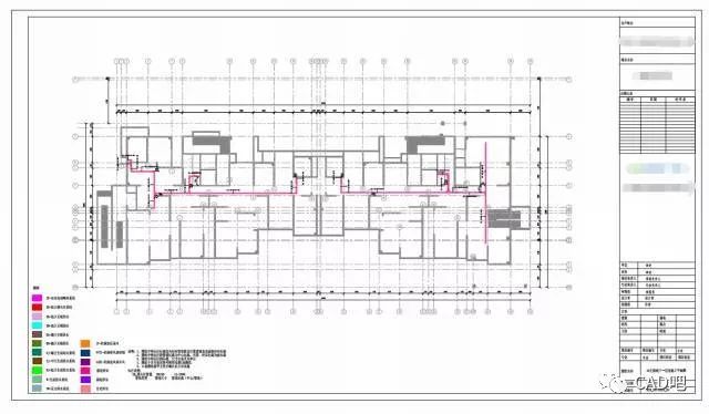
完成标签图框后添加图,图框大小选择的基础上,项目的大小,然后,添加图纸图框,如下图:

加框后,添加图例和相应的指示图,添加的图数和图的名称,然后一个完整的图就完成了。
第六步
最后,我们可以使用“导出”命令下的“CAD格式”导出CAD绘图。
或者使用“打印”命令,使用PDF打印机,出口。PDF格式图纸。
这是摆在我们面前的一幅完整的图画。我们现在试试吧,需要它的小朋友们。

转载请注明来源本文地址:https://www.tuituisoft/blog/10957.html