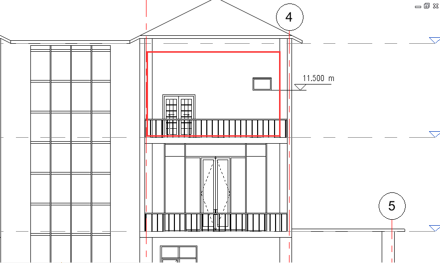
前几天有个学员在画完模型出图的时候遇到这样的问题:一个楼层平面内不同的构件会出现不同高度,门和窗无法在一个平面图中显示!
问题状况如下图所示:


像这种情况即使修改楼层平面的视图范围,这个门和窗在楼层平面上无法同时显示。


那应如何解决呢?
今天就教大家一个简单的办法
步骤图文详解
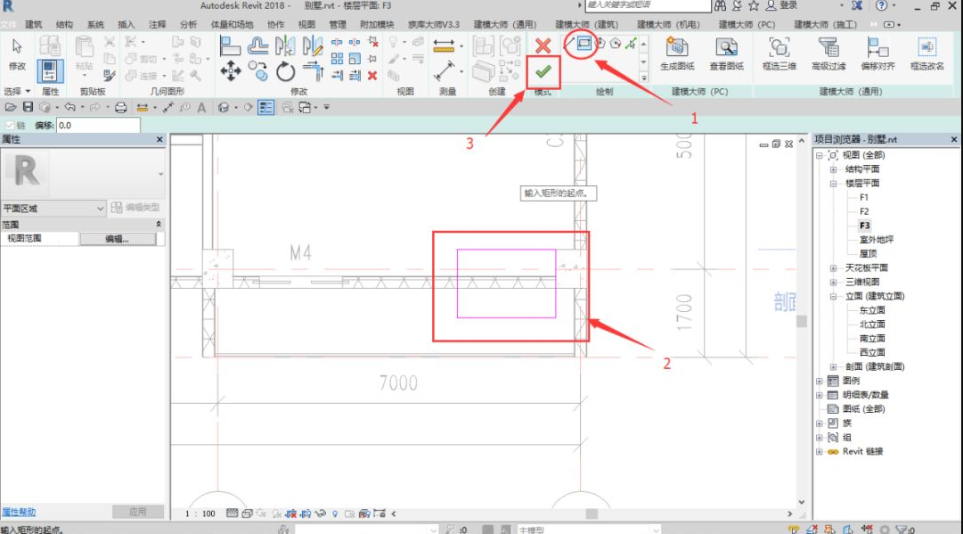
1、点击视图选项卡下平面视图按钮旁下拉小三角,然后选择平面区域命令。

2、选择矩形绘图命令,将窗户的位置框出来,然后点击√确定。

3、先点击绘制完成的平面区域,在属性栏里点击视图范围旁边的编辑。然后修改成合适的视图范围,点击确定。


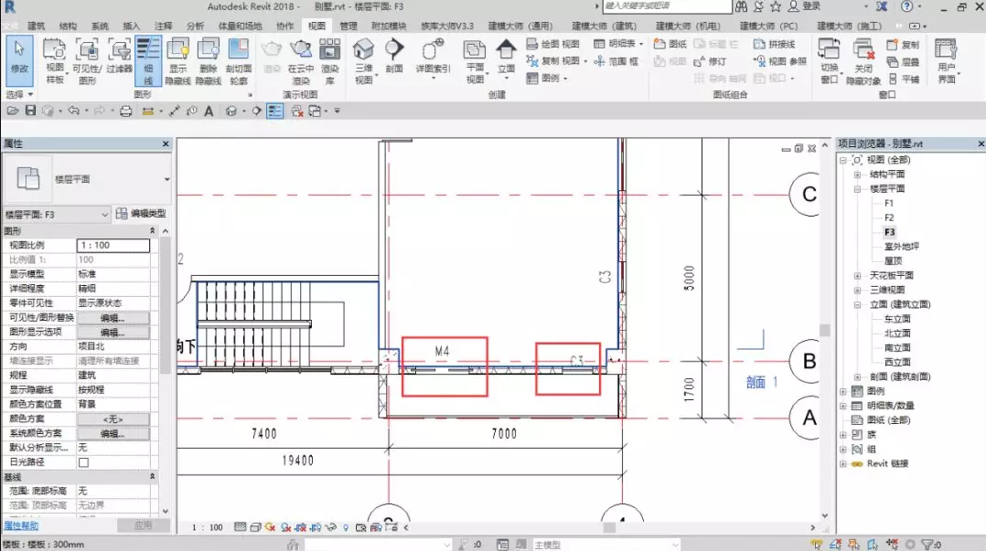
4、右键平面区域,选择在视图中隐藏中的图元,将平面区域的线条隐藏起来,这样就不会影响后续出图了。

现在可以看到,能同时显示了!

Revit中文网作为国内知名BIM软件培训交流平台,几十万Revit软件爱好者和你一起学习Revit,不仅仅为广大用户提供相关BIM软件下载与相关行业资讯,同时也有部分网络培训与在线培训,欢迎广大用户咨询。
网校包含各类BIM课程320余套,各类学习资源270余种,是目前国内BIM类网校中课程最有深度、涵盖性最广、资源最为齐全的网校。网校课程包含Revit、Dynamo、Lumion、Navisworks、Civil 3D等几十种BIM相关软件的教学课程,专业涵盖土建、机电、装饰、市政、后期、开发等多个领域。
需要更多BIM考试教程或BIM视频教程,可以咨询客服获得更多免费Revit教学视频。
转载请注明来源本文地址:https://www.tuituisoft/blog/11199.html