今天我们来学习Revit中“杯形基础”是如何绘制的。杯形基础又叫杯口基础,是独立基础中的一种。

首先,我们打开Revit,新建一个概念体量,选择公制体量。

点击右下角的项目浏览器,进入立面视图中的南立面,我们先根据图纸绘制参照平面,参照平面绘制好后,点击创建模型中的直线画出模型轮廓。选中绘好的模型线点击“创建形状”创建实心体形状。

打开项目浏览器中的三维视图点击进入三维视图,全选中我们绘好的模型,模型周围会出现它的长度,点击根据图纸修改它的长度。

下一步,我们得把多余的部分抠掉。
首先我们进入立面视图中东立面,根据绘制参照平面。然后,使用模型线勾勒出多余部分的轮廓。

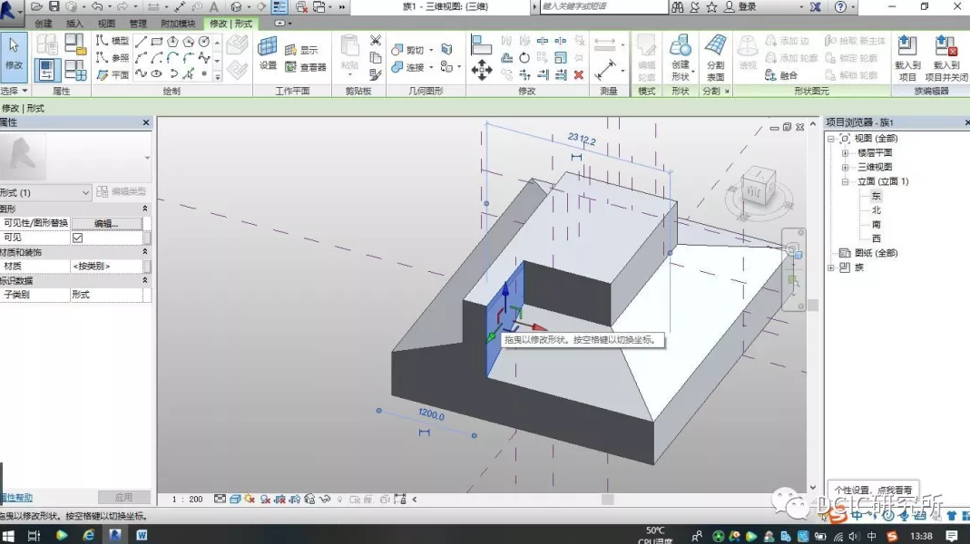
选中绘制好的模型线点击“创建形状”选择“空心形状”,进入三维视图,点击空心形状的一个面,图中会出现一个坐标轴,我们将坐标轴中的红色箭头进行拖拽。如下图将红色箭头向左拖动就可以得出我们想要的模型了。

接下来,我们来绘制杯形基础的空心部分,我们可以看出图纸中的空心部分上下宽度是不同的,且空心部分距离底面的距离是400,。首先,我们进入立面视图中的南立面绘制一个参照平面,将它的高度修改为400,并在属性栏中的标识数据中修改它的名称为“空心底”。

进入楼层平面视图中的标高一,先根据图纸绘制参照平面,将上底和下底两个矩形都画出来。然后我们选择模型线,选择矩形绘制画出两个矩形。

选中小矩形操作页面的左上角会出现主体,将它的主体修改为“参照平面:空心底”修改后按住ctrl,选中大矩形,点击“创建形状”创建空心形状。到这儿我们的杯形基础就绘制完成了。


最后我们还可以选中这个模型将它的材质改为混凝土材质,点击左上角新建一个项目选择建筑样板,回到我们绘制杯形基础的这个页面,将我们绘好的杯形基础载入到项目。




今天的技术篇就分享到这儿啦~
咱们下期再见~
Revit中文网作为国内知名BIM软件培训交流平台,几十万Revit软件爱好者和你一起学习Revit,不仅仅为广大用户提供相关BIM软件下载与相关行业资讯,同时也有部分网络培训与在线培训,欢迎广大用户咨询。
网校包含各类BIM课程320余套,各类学习资源270余种,是目前国内BIM类网校中课程最有深度、涵盖性最广、资源最为齐全的网校。网校课程包含Revit、Dynamo、Lumion、Navisworks、Civil 3D等几十种BIM相关软件的教学课程,专业涵盖土建、机电、装饰、市政、后期、开发等多个领域。
需要更多BIM考试教程或BIM视频教程,可以咨询客服获得更多免费Revit教学视频。
转载请注明来源本文地址:https://www.tuituisoft/blog/11251.html