文章来源:柏慕进业

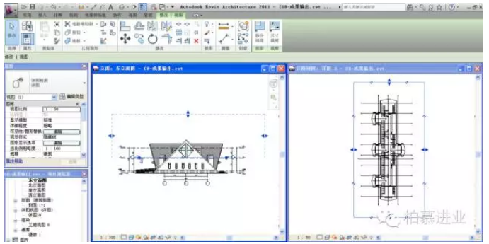
1)可以在立面中使用视图面板下的剖面工具并在其图元属性中修改其类型为详图视图如图1;

图1
2)绘制如图2剖面范围并通过左下角的翻转符号控制其视图方向,注意在剖面的四种类型中只有详图视图可以实现在立面上绘制水平剖面,完成的剖面视图如图3;

图2

图3
Revit中文网作为国内知名BIM软件培训交流平台,几十万Revit软件爱好者和你一起学习Revit,不仅仅为广大用户提供相关BIM软件下载与相关行业资讯,同时也有部分网络培训与在线培训,欢迎广大用户咨询。
网校包含各类BIM课程320余套,各类学习资源270余种,是目前国内BIM类网校中课程最有深度、涵盖性最广、资源最为齐全的网校。网校课程包含Revit、Dynamo、Lumion、Navisworks、Civil 3D等几十种BIM相关软件的教学课程,专业涵盖土建、机电、装饰、市政、后期、开发等多个领域。
需要更多BIM考试教程或BIM视频教程,可以咨询客服获得更多免费Revit教学视频。
转载请注明来源本文地址:https://www.tuituisoft/blog/12143.html