文章来源:海南省BIM中心

Revit中"参照平面"你不知道的事儿,本文由网友“许愿的许”投稿,海南省BIM中心版权所有。
以参数化钢筋族为例。
场景一:
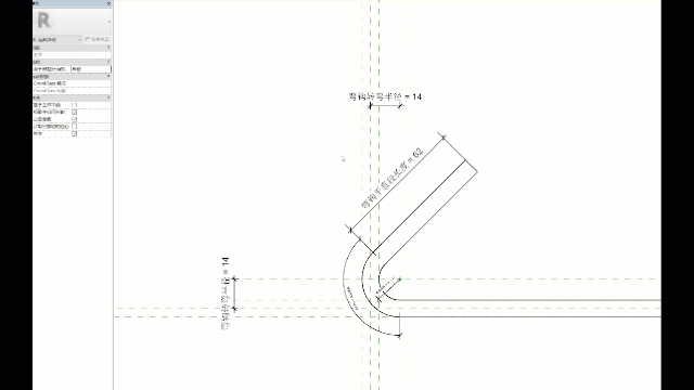
我们在Revit对PC构件进行建模,然后出图,出图的时候就必须对钢筋的尺寸进行标注,但是由于钢筋的端部是带弯钩的,端部没有水平线,是圆弧,因此我们是没有办法正常标注的,如下图一样:

这时呢,不用着急,在这里会用到"参照平面"中的"强参照"和"非参照"功能。

那什么是强参照和非参照呢?且听我慢慢道来。
首先,先选中你要捕捉的那根参照平面,属性浏览器中"其他"选项卡"是参照"中下拉就会出现。咱先试一下"强参照",将端部的"参照平面"属性改为"强参照"然后载入至项目中,如下图。

很明显,这时候我们可以soeasy的标注,反之,"非参照"状态下,我们使出洪荒之力都无法标注。
场景二:
还是以钢筋族为例,不满足于族样板中默认的基点位置,在PC构件中,我们应该知道保护层和钢筋的基本构造关系,希望载入进来的钢筋族可以直接定位,即载入后,直接偏移一个保护层,移动一个钢筋端部伸出一个距离即可。

在Revit中也是可以做到的,选中你需要定义基点位置的"参照平面",属性浏览器中"其他"选项卡下方,勾选"定义远点",这时载入进来的族即是你需要的。

场景三:
想必大家都知道族中的"类型参数"和"实例参数"。
简单点说,"实例参数"即选中构件族在属性栏中即可修改其参数;"类型参数"则是点开"编辑类型"复制再修改。在装配式建模中,钢筋的型号较多,因此,大部分参数可以使用"实例参数"来编辑。

钢筋端部的参数也是实例参数,因此导入到项目中的时候,端部就会出现一个"控制参数"的图标,通过拖动这个图标就可以快速的修改参数,但是我们并不想通过这个来控制参数,因为通过它来控制,不能精确参数的数值,而且在这个族中,拖动它,钢筋的直径会被无限的放大缩小,并不是我们想要的。


我们想要什么样的效果呢?既要这里是强参照,又要它是实例属性,这时可以先将端部的"参照平面"改为"非参照",然后重新画一根"参照平面"并改为"强参照"并锁定在刚才那根"非参照"的参照平面即可。因为这跟"非参照"没有附带参数属性,所以并不存在参数属性。

Revit中文网作为国内知名BIM软件培训交流平台,几十万Revit软件爱好者和你一起学习Revit,不仅仅为广大用户提供相关BIM软件下载与相关行业资讯,同时也有部分网络培训与在线培训,欢迎广大用户咨询。
网校包含各类BIM课程320余套,各类学习资源270余种,是目前国内BIM类网校中课程最有深度、涵盖性最广、资源最为齐全的网校。网校课程包含Revit、Dynamo、Lumion、Navisworks、Civil 3D等几十种BIM相关软件的教学课程,专业涵盖土建、机电、装饰、市政、后期、开发等多个领域。
需要更多BIM考试教程或BIM视频教程,可以咨询客服获得更多免费Revit教学视频。
转载请注明来源本文地址:https://www.tuituisoft/blog/12738.html