来源丨益埃毕教育
根据Revit模型文件里风管系统级别的要求,风管系统按其系统的工作压力划分四个类别,它们为微压、低压、中压和高压。按系统工作压力P(Pa)范围大小和密封不同的要求,高压风管系统级别最高,微压、低压系统风管级别较低,而中压系统风管则居中。
在Revit中为风管系统设置级别,可以根据软件菜单栏上的工具来处理,有两种方法:一是利用明细表安排风管系统其类型属性设置的自定义级别,二是在项目参数添加自定义参数并通过风管图例来设置,这样不同的风管系统族件就能按照一切命令表达不同的级别。
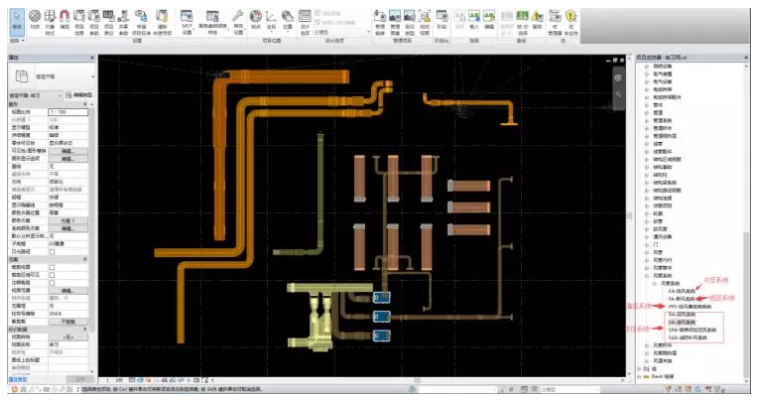
打开某项目文件,可以看到项目浏览器里风管系统设置的几个系统,按照级别要求,可以设置:排风兼排烟系统为高压系统,排风系统、送回风系统、楼梯间加压风系统及消防补风系统为中压系统,新风系统为低压系统,如图所示。

使用第一种方法,详见步骤:
1、在“项目浏览器”里“风管系统”选择“EA-排风系统”,右键单击“类型属性”,在“类型属性”对话框下“标识数据”的“说明”备注“中压系统”,并点击“确定”,如图所示。

2、重复1步骤,依次为其它风管系统在其类型属性里面备注不同的级别。
3、新建明细表,过滤选择权仅适用于风管系统,通过明细表的创建过程添加族与类型、系统名称和级别说明等,如图所示。



这样就通过明细表的设置下安排不同风管系统的自定义级别:低压、中压及高压等。
使用第二种方法,详见步骤:
1、点击“管理”选项卡面板的“项目参数”,在参数属性对话框上,名称(N):级别,参数分组方式(G):模型属性,并在过滤器列表下关联和风管系统相关的族件,回到项目参数对话框下点击“确定”,如图所示。


2、依据不同的风管系统分类,在平面视图上选中主要风管,比如“PPY-排风兼排烟系统”,在其右边属性面板上“模型属性”框中输入“高压系统”,点击“确定”,如图所示。

3、重复2步骤,依次为其它风管系统在属性栏里的模型属性上备注不同的级别。
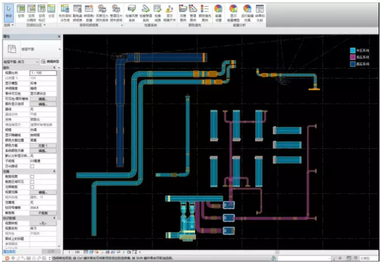
4、点击“分析”选项卡面板上的“颜色图例”-“风管图例”,在“选择颜色方案”对话框上点击“确定”,如图所示。

5、在操作界面上点击该图例并单击修改面板上的“编辑方案”,出现此对话框,新建一个方案名称为“风管颜色填充-级别”,标题为“风管颜色填充-级别”,颜色选择为“级别”,利用“+”和“-”按键在表格上添加“中压系统”和“低压系统”,删掉其它无用数据,点击“确定”,见下图。


这样就利用项目参数添加自定义级别并通过风管图例来表达风管系统三个不同的级别。
根据上述两种方法,结合实际中的特殊要求可以参照此方法来设置不同系统族件的级别。
-END-
Revit中文网作为国内知名BIM软件培训交流平台,几十万Revit软件爱好者和你一起学习Revit,不仅仅为广大用户提供相关BIM软件下载与相关行业资讯,同时也有部分网络培训与在线培训,欢迎广大用户咨询。
网校包含各类BIM课程320余套,各类学习资源270余种,是目前国内BIM类网校中课程最有深度、涵盖性最广、资源最为齐全的网校。网校课程包含Revit、Dynamo、Lumion、Navisworks、Civil 3D等几十种BIM相关软件的教学课程,专业涵盖土建、机电、装饰、市政、后期、开发等多个领域。
需要更多BIM考试教程或BIM视频教程,可以咨询客服获得更多免费Revit教学视频。
转载请注明来源本文地址:https://www.tuituisoft/blog/12901.html