视图样板是一系列视图属性,例如,视图比例、规程、详细程度以及可见性设置。
使用视图样板可以为视图应用标准设置。 使用视图样板可以帮助确保遵守公司标准,并实现施工图文档集的一致性。
在创建视图样板之前,请首先考虑如何使用视图。 对于每种类型的视图(楼层平面、立面、剖面、三维视图等等),要使用哪些样式? 例如,设计师可以使用许多样式的楼板平面视图,如电力和信号、分区、拆除、家具,然后进行放大。
您可以为每种样式创建视图样板来控制以下设置:类别的可见性/图形替代、视图比例、详细程度、图形显示选项等等。
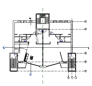
样例
以下示例显示了构造楼层平面和展示楼层平面。 可以使用预定义的可见性和图形设置为每个样式创建视图样板。

将视图样板中的属性应用于某个视图。 以后对视图样板所做的修改不会影响该视图。
将视图样板指定给某个视图,从而在样板和视图之间建立链接。 以后对视图样板所做的修改会自动应用于任何链接的视图。
可以通过以下方法使用视图样板来控制视图:
可以将视图样板从一个项目传递到另一个项目。
转载请注明来源本文地址:https://www.tuituisoft/blog/13126.html