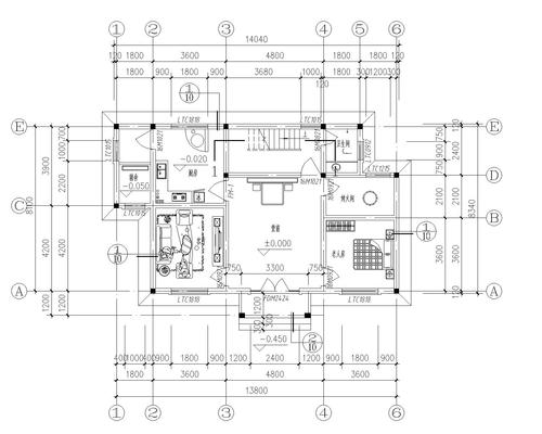
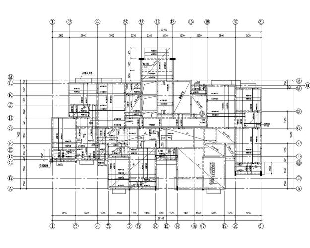
绘制CAD建筑平面图的步骤可以分为以下几个主要阶段:

1. 收集信息和准备工作
在开始绘制CAD建筑平面图之前,首先需要收集相关的信息和准备所需的工具。收集信息包括了解建筑的尺寸、布局和设计要求等。准备工作包括准备计算机设备,安装CAD软件以及确定绘图的比例尺。2. 绘制建筑草图
根据收集到的信息,可以使用草图工具在纸上或计算机上绘制建筑草图。建筑草图是初始设计的基础,可帮助确定建筑的整体布局和空间分配。3. 创建CAD模型
在CAD软件中,使用建筑草图作为参考,创建建筑的三维CAD模型。这个步骤需要了解CAD软件的基本操作和建模技巧。通过绘制建筑的各个组成部分,如墙壁、窗户、门等,创建建筑的三维模型。4. 设置图层和标注
在CAD软件中,可以将不同的元素放置在不同的图层上,以便更好地管理和控制绘图。为建筑平面图设置不同的图层,如墙壁、窗户、家具等,以便于后续的编辑和调整。此外,还需添加标注和文字,如建筑尺寸、名称和材料等,以便于清晰地表达设计意图。5. 渲染和可视化
通过在CAD软件中添加光线和材质效果,可以对建筑模型进行渲染和可视化。这将使建筑平面图更加逼真、生动,并使设计师和客户能够更好地理解和评估建筑的外观和氛围。6. 最后的编辑和优化
在完成建筑平面图的基本绘制后,需要进行最后的编辑和优化。这可能包括调整尺寸、修改布局、改进细节等。此外,还可以通过添加阴影、背景等元素来增强设计效果。
总结
绘制CAD建筑平面图需要一定的技术和经验。通过按照上述步骤进行操作,设计师可以更好地呈现建筑设计的概念和细节。CAD软件的使用不仅可以提高效率,还可以提供更多设计选择和可视化效果。无论是建筑师还是设计师,掌握CAD建筑平面图的绘制技巧都将对他们的工作产生积极的影响。
转载请注明来源本文地址:https://www.tuituisoft/blog/14737.html