今天我们聊一聊怎样用Revit场地功能实现基坑放坡开挖,然后计算土方开挖方量及回填方量。
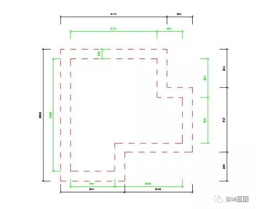
1、首先打开Revit软件,新建项目,用参照平面做出基坑顶边线及底边线参照轮廓,以放坡系数m=0.625,基坑深H=2.400M进行放坡,用尺寸标注基坑顶与底相关尺寸。

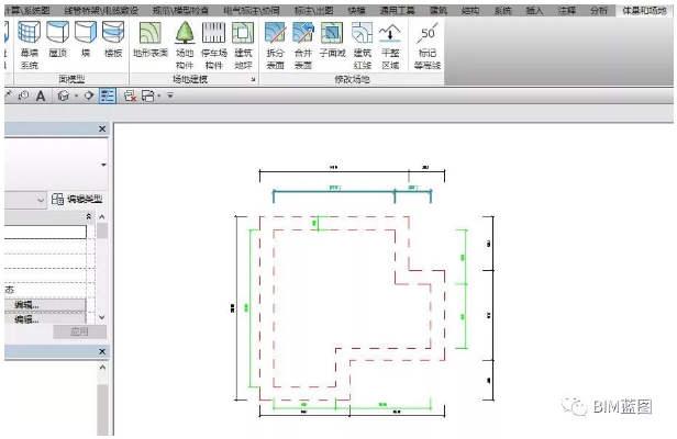
2、使用体量和场地菜单下地形表面建立原始地形,注:原始地形可以通过导入实际地形高程点CSV、TXT或DWG格式,这里的高程点为平整场地过后的地形高程,怎样使用方格网计算土方平整量,如何在Revit进行实现,今天先不聊。
为了方便演示,假设场地平整高程全为-0.6m(实际工程是不可能的)。


3、原始地貌完成建立。

4、使用拆分表面功能对原始地形沿着基坑顶边线进行拆分,打勾完成。


5、再使用拆分表面功能对上一步拆分后的地形再次拆分,沿着基坑底边线拆分,打勾完成。


6、进入三维,选中中间拆分后环形带,删除环形带上所有高程点,只保留角点高程,同时修改基坑底边线角点高程为-3m(-3m为基坑底高程),打勾完成。



7、完成效果如下。

8、同理,选中中间拆分区域,删除多余点,只保留角点高程,修改角点高程为-3m。



9、完成如下。

10、使用体量计算开挖方量,使用内建体量,完成体量建模,体量上表面对齐基坑顶,下表面对齐基坑底,得出挖方量V=662.250,也可使用内建模型计算。
回填方量:
一:如果能用明细表精确计算基础各部分体积V1,那么就用V-V1,得出回填量。
二:采用体量V1建基础模型,用大基坑体量V进行剪切,剪切后的体量体积V-V1,自动得出回填量。
三:采用内建模型V1建基础模型,用大基坑内建模型V进行剪切,剪切后的内建模型体积V-V1,自动得出回填量。
四:方法不仅限以上,如果谁还有更好的方法,后台留言给小编,一起学习探讨。



11、不断使用地形拆分、合并、修改高程点实现土方运输马道创建。
总结:创建土方放坡模型不仅限以上方法,下期小编再用另一种方法创建,再对比两种方法挖方量是否一致。如果谁还有更好的方法,后台留言给小编,一起学习探讨。
转载请注明来源本文地址:https://www.tuituisoft/blog/14817.html