
在Revit中,创建载入窗族类型可以高效率的工作,当你的族和你项目中的族有冲突时,也会出现无法载人的问题。现教您快速载入窗族及如何避免族的冲突。
01、载入窗族类型

1)插入-载入族-建筑-窗,选择合适的窗族类型。如选择普通窗——推拉窗,确定;
2)点击打开,所选择的族将载入当前项目;
3)点击建筑-窗,找到刚才载入的族。
02、窗族参数修改

1)点击编辑类型-复制,输入你需要的窗族名称;
2)注意,此时修改参数最好复制一个实例出来再修改,避免误改同类型的其他窗;
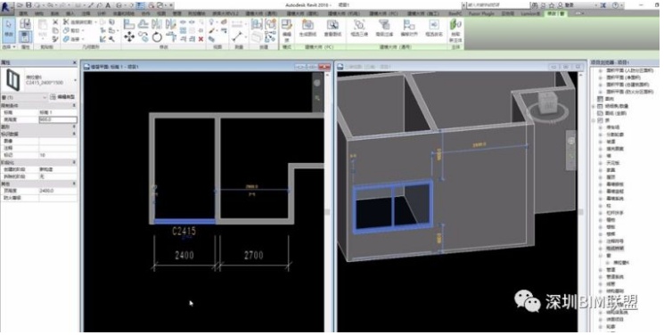
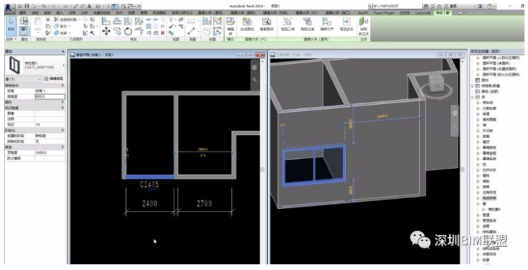
3)修改窗的尺寸、材质及类型标记。如宽度2400,高度1500,材质选择玻璃。
03、窗的安装高度修改

1)打开“在放置时进行标记”,修改窗的安装高度;
2)注意,若在选中某一个窗的情况下,对窗族类型进行复制、修改参数等操作,则该窗将会被替换为你所修改后的类型;
3)同样,修改尺寸高度。如宽度2500,高度1800,标记类型C2518。
04、拖入窗族

1)已载入窗族可以从属性中选择放置,也可以从项目浏览器-族-窗中找到直接拖入;
2)关闭“在放置时进行标记”功能时,所放置的窗不会对“类型标记”进行标记。
以上是窗族载入的功能演示,您学会了吗?关注我们,学习更多BIM知识。
来源:深圳BIM联盟
转载请注明来源本文地址:https://www.tuituisoft/blog/15031.html