Revit是一款功能强大的建筑信息建模(BIM)软件,广泛应用于建筑设计和工程领域。在Revit中,族参数是用来控制和定义构件属性和行为的重要组成部分。然而,有时候我们可能需要删除一些不再需要的族参数,以减少模型复杂性或者规范化参数设置。在本文中,我们将介绍如何在Revit中删除族参数。

在删除族参数之前,我们首先需要了解一些基本的概念。Revit中的族是一组具有共同属性和行为的构件,例如墙、窗户或家具。每个族都可以包含多个参数,这些参数用来控制族的特性和行为。族参数可以是实例参数(Instance Parameter)或类型参数(Type Parameter)。实例参数用于单个族的实例,而类型参数用于整个族的所有实例。
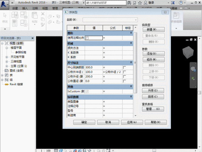
要删除一个族参数,我们可以按照以下几个步骤进行操作:
第一步:打开Revit软件,并打开包含需要删除参数的族文件。在Revit界面的“项目浏览器”中选择该族文件。
第二步:在“项目浏览器”中,展开“族类型”节点,并选择需要删除参数的族类型。
第三步:在属性窗口中,找到“族参数”选项卡,并展开该选项卡。在这里,您可以看到所有与该族相关的参数。
第四步:在参数列表中,找到要删除的参数,并右键单击该参数。在右键菜单中选择“删除参数”选项。
第五步:在弹出的确认对话框中,确认删除操作。请注意,删除参数将无法撤消,所以在进行删除之前,请务必确认您选择了正确的参数。
第六步:完成以上步骤后,您已成功删除了指定的族参数。您可以通过查看属性窗口中的参数列表来确认参数是否已被删除。
在删除族参数时,有几点需要注意:
首先,请确保您有足够的权限来删除参数。有时候,只有具有管理员权限或者特定权限的用户才能删除参数。
其次,删除参数可能会对模型造成一定影响。如果该参数在其他元素或族中有引用,删除参数可能会导致这些元素或族的参数不再有效。在删除参数之前,建议先检查并确认是否有其他元素或族正在使用该参数。
此外,删除参数后无法恢复,因此在进行删除操作之前,请再次确认您的操作。如果您不确定是否需要删除参数,建议先进行备份或咨询相关专业人士的意见。

综上所述,本文介绍了如何在Revit中删除族参数的步骤和注意事项。通过正确使用这些技巧,您可以更好地管理和优化Revit模型,并确保参数设置的一致性和准确性。
转载请注明来源本文地址:https://www.tuituisoft/blog/6374.html