Revit软件是一款专业的建筑设计软件,它提供了全面的建筑信息模型(BIM)解决方案。在Revit软件中,我们可以轻松地设计出仅有两个楼层的平面布局。

首先,我们需要创建一个新的项目。在Revit软件的开始界面中,选择“新建项目”,然后根据需要选择合适的单位和模板。在这个例子中,我们选择了建筑模板。
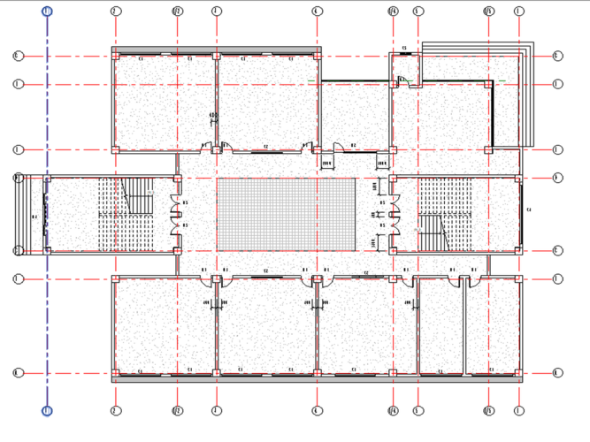
接下来,我们需要按照实际的需求进行楼层的设计。在Revit软件中,我们可以使用楼层视图来设计每个楼层的平面布局。通过在楼层视图中添加墙体、楼梯、门窗等元素,可以很容易地创建出一个仅有两个楼层的平面设计。
在添加墙体时,Revit软件提供了多种方式,如直线绘制、矩形绘制等。我们可以根据具体的需求选择合适的方式进行墙体的绘制。同样地,我们可以使用其他工具来绘制楼梯、门窗等元素。
除了基本的建筑元素外,Revit软件还提供了丰富的家具、装饰物等家居元素。我们可以通过在楼层视图中添加这些元素,使平面设计更加生动和具有居住性。
在设计过程中,Revit软件为我们提供了实时的3D可视化效果。我们可以随时切换到3D视图,查看平面设计在三维空间中的效果。这为我们提供了更直观的感受,并且可以及时进行修改和调整。
当平面设计完成后,我们可以导出设计图纸或者生成建筑信息模型(BIM)。这些文件可以方便地与其他设计师、工程师或者客户进行交流,实现设计的沟通和共享。

总的来说,Revit软件是一个功能强大且易于使用的建筑设计软件。通过它,我们可以轻松地设计出仅有两个楼层的平面布局,并且能够实时查看和调整设计效果。它不仅提高了设计效率,还提供了更多的设计灵活性和交流的便利性。
转载请注明来源本文地址:https://www.tuituisoft/blog/7082.html