板的绘制过程是什么?
步骤:
1、 选择合适类型的板,编辑设置版的规格和材质
2、 按照版图进行放置
3、 修改板的高度(看文字说明)
4、 注意板要一块一块绘制
5、 注意看详图
技术要点:
1、 打开插入选项卡中的链接CAD,选择需要的CAD图,勾选仅当前视图、导入单位选择毫米、定位选择自动中心到中心,使用快捷键AL对齐到轴网,由背景更改为前景,方便绘制。

2、选择拾取线进行绘制(或其他方式),然后使用TR命令进行修剪,最后进行标高的调整(使用EL进行查看标高是否符合要求),进行绘制是要一块一块地进行绘制。
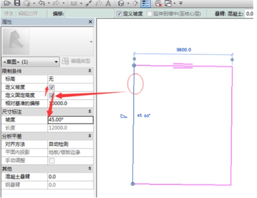
3、如何绘制斜楼板:
1)创建楼板边界后,选中需要修改的草图边界
2)勾选定义固定高度,再勾选“定义坡度”,最后在尺寸标注栏的“坡度”中输入坡度值(可在CAD图中查找或自己计算)。然后点击“完成绘制”按钮即可完成斜板的绘制。
4、如何在楼板上开洞:常常使用竖井功能创建洞口
1)在需要的位置绘制洞口形状,并选择完成按钮,完成竖井洞口的创建
2)点选中绘制的竖井,在左侧属性窗口选择修改竖井的底部约束条件和顶部约束。
3)或者可直接在三维视图中,勾选剖面框(方便看图和移动),拖拽竖井的端点进行移动,将端点移动到需要的位置
转载请注明来源本文地址:https://www.tuituisoft/blog/7811.html