目前,对于建筑技术人员来说,Revit软件已经是重要的应用工具,在Revit建模过程中,针对LOD等级要求较高的项目,常规的族构件无法满足相应的精细度的需求,因此我们需要通过新建或者修改现有族来实现。此处以门为例,介绍如何创建带开启角度的门。
1、选择正确的族样板文件

(注:一般选择公制门或基于墙的公制常规模型,如选择基于墙的公制常规模型需要设置其族类别和族参数)
2、在视图“外部”拉伸门外框,并将外框轮廓线锁定在墙上

3、在参照标高视图对门外框厚度进行设定。绘制两条参照线在墙两侧,并进行EQ等分,将外门框边锁定在参照线,将门厚度设置参数。
3.

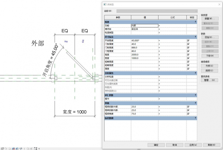
4、在参照标高上绘制参照线定义开启角度并锁定参照线

5、设置角度参数

6、利用拉伸命令设置门板宽度和厚度,并添加参数。注:门板外侧与参照线对齐锁定

7.

7、在外部视图中调整门板高度使其与门外框锁定对齐,并载入门把手为带角度们添加门把手,为带角度的门添加材质参数并赋予材质

9.

8、为带角度开启的门赋予合适的材质

转载请注明来源本文地址:https://www.tuituisoft/blog/8231.html