执行面积分析时,可以创建面积方案,以多种方式分析模型。
面积方案是可定义的空间关系。例如,可以用面积方案表示楼层平面中核心空间与周边空间之间的关系。
我们可以创建多个面积方案。默认情况下,Revit会创建两个面积方案:
总建筑面积:建筑的总建筑面积。
出租面积:基于办公楼楼层面积标准测量法的测量面积。
注意:不能编辑或删除“总建筑面积”方案,但可以修改“出租面积”方案,可以根据需要创建附加的面积方案。

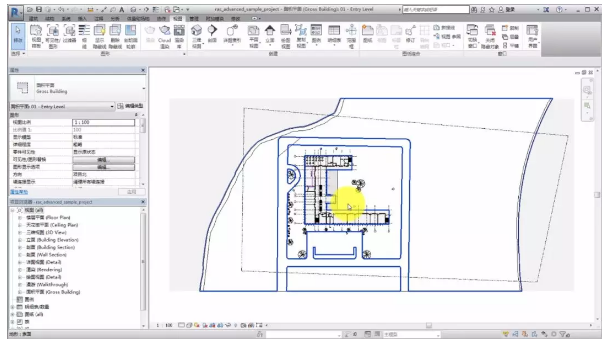
▲应用了面积方案的面积平面
创建自定义面积平面的面积方案。
1.单击“建筑”选项卡“房间和面积”面板下拉列表(面积和体积计算)。
2.在“面积和体积计算”对话框中,单击“面积方案”选项卡。
3.单击“新建”。
4.输入新面积方案的名称作为“名称”。
5.输入新面积方案的说明作为“说明”。
6.单击“OK”。
如果删除面积方案,则与其关联的所有面积平面也将被删除。
1.单击“建筑”选项卡“房间和面积”面板下拉列表(面积和体积计算)。
2.在“面积和体积计算”对话框中,单击“面积方案”选项卡。
3.选择面积方案。
4.单击“删除”。
5.单击“OK”。
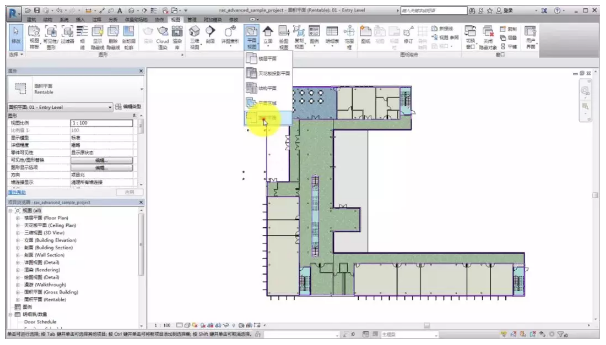
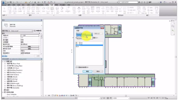
在“视图”选项卡中,单击“平面视图”并选择“面积平面”在“面积平面”对话框中,选择类型默认情况下,可选择2个类型:“总建筑面积”和“出租面积”在本示例中,我们将先制作总建筑面积平面选定类型后,选择“标高1”,然后单击“确定”。

若要在平面的外墙上自动创建边界线并为总建筑放置面积,请单击“是”软件就会创建面积平面使用相似步骤创建相同标高的出租面积平面。请注意,在“项目浏览器”中,不同面积平面类型会被组织在不同标题下。

若要创建不同类型的面积平面,必须创建一个新的面积方案。

在“建筑”选项卡中,单击“房间和面积”面板中的箭头,并选择“面积和体积计算”在“面积方案”选项卡中,单击“新建”创建新的面积方案,设置方案的名称和描述后,单击“确定”。

这样在您创建新面积平面时,就能在类型列表中找到新方案。

根据需要在模型中创建并使用面积方案,帮助您分析设计中的空间和面积需求。

转载请注明来源本文地址:https://www.tuituisoft/blog/8680.html