风阀计算工程量特别简单,按图纸数“个”就行!用CAD快速看图时,用“提取文字”和“编号文字”功能,点点图就能轻松数清楚有多少个,特别方便。
一、风阀
风阀是空气输配官网的控制、调节机构,基本功能是截断或开通空气流通的管路,调节或分配管路流量。一般安装在风道或风口上,用于风量调节、风口的关闭以及风机的启动和通风系统中的阻力平衡,有时兼有防止系统发生火灾的作用。
二、风阀分类
1.具有控制和调节两种功能:蝶式调节阀、棱形单叶调节阀、插板阀、平行式多叶调节阀、对开式多叶调节阀、菱形多叶调节阀、复式多叶调节阀、三通调节阀等。蝶式调节阀、棱形单叶调节阀和插板阀主要用于小断面风管;平行式多叶调节阀、对开式多叶调节阀和菱形多叶调节阀主要用于大断面风管;复式多叶调节阀和三通调节阀用于管网分流或合流或旁通处的各支路风量调节。

2.只具有控制功能的风阀有止回阀、防火阀、排烟阀等。止回阀控制气流的流动方向,阻止气流逆向流动;防火阀平常全开,火灾时关闭并切断气流,防止火灾通过风管蔓延,70℃关闭;排烟阀平常关闭,排烟时全开,排除室内烟气,80℃开启。

三、风阀工程量计算规则
风阀安装按设计图示数量以“个”计算。

四、实例分析
1.计算车库-风阀安装工程量,通过图例表,确定风阀的类别和图例。

2.用CAD快速看图查看图纸并计量
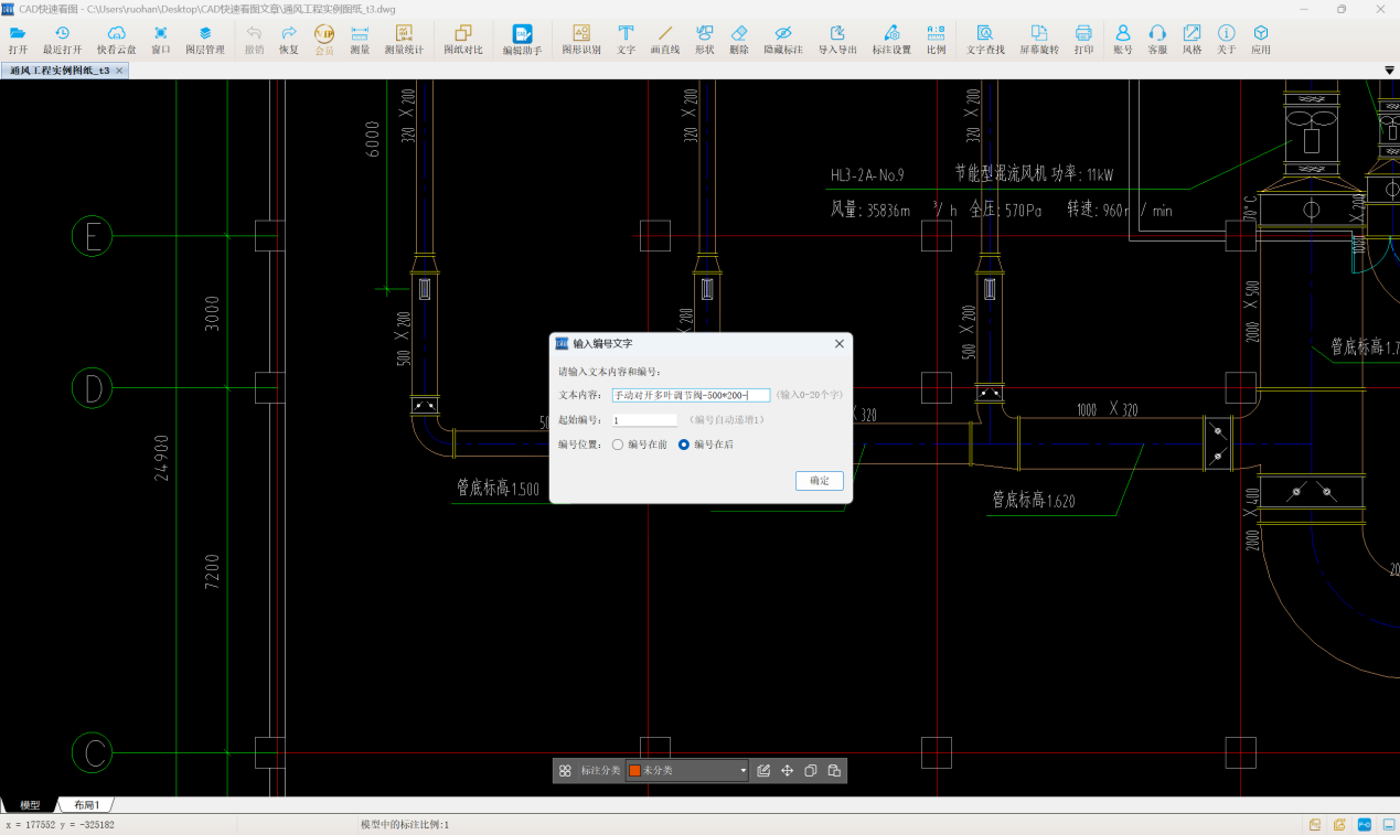
以手动对开多叶调节阀为例进行说明:使用【提取文字】功能,提取到“手动对开多叶调节阀”,点击复制到剪贴板。接着使用【文字】-【编号文字】功能,粘贴到文本内容中,其后补充“-500*200-”,点击确定。查找整张平面图,依次在在相应图形旁单击,在图纸上保留文字,确定数量为3个。



再以70℃防火阀为例,为了便于统计,可以在【标注分类】里新建分类为分类2,设置颜色为粉色。然后采用同样的方法,查找整张平面图,得到70℃防火阀-1250*320的数量为2。

风阀的计量可以采用编号文字功能,特别是数量较少的时候,结合标注分类、提取文字等功能 ,更加方便。
#风阀#编号文字#提取文字#标注分类
转载请注明来源本文地址:https://www.tuituisoft/blog/90961.html