Revit技巧 | revit如何设置选项?如何自定义Revit选项Customizing Revit Options
Revit选项(Options)是很多人会忽略掉的设置。因为一般都是直接新建项目,选择相应专业模板,然后就开始建模了,这都是针对某个具体项目的设置。而RevitOptions则是影响到Revit这个软件本身,也就是针对所有项目都适用。以Revit样板文件为例,今天简单介绍下几个个人必设置的选项。
1、DefaultViewDiscipline
为了使项目浏览器更有逻辑,一般需要设置一个浏览器组织,比如设置最终视图一组,工作视图一组,以及按比例分组,或者按功能分组等等等等。

设置项目浏览器组织

设置好浏览器组织后,可以在View-UserInterface-BrowserOrganization选择相应的设置,也可以在项目浏览器上方点击,通过属性的下拉箭头选择相应设置。
之所以提到这个,是因为当我们新建视图的时候,新建的视图是默认带Discipline的。当我们按Discipline作为浏览器组织分类时(而且大部分时候是这样),就会出现视图不在我们想要的Discipline下的情况。
比如我是做建筑方案的,默认需要将Discipline放在Architectural下(如前所述,也可以为工作视图或者其它专业视图等),而Revit默认是新建视图Discipline为Coordination:


新建视图默认Discipline为Coordination
这个我们就可以在RevitOptions(File-Options)里面进行设置,选择相应Discipline即可:
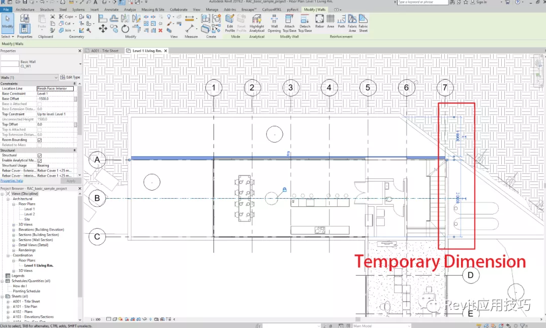
2、TemporaryDimensionTextAppearance
在Options-Graphic里面有个TemporaryDimensionTextAppearance,顾名思义,这个的作用在于修改临时标注的字大小。默认为8,一直觉得略小,所以倾向于改成12。

临时标注即当你选择某个图元时,会显示该图元与相邻图元/轴线等的距离,这个距离就是临时标注。

3、Double-ClickBehaviors
这里面个人主要设置一个双击对于编辑族的影响。正常项目工作时,会点击某族看下什么属性之类的,这很容易导致双击,而默认情况下双击是会进编辑族的模式,这就影响到工作效率及心情。我希望编辑族这个是我刻意去点Modify-EditFamily,所以Family这里的设置倾向于选DoNothing。

RevitOption里还有不少可设置的内容,比如设置标签界面,ViewCube之类等,但上面讲到的三个设置是目前工作中用的最舒爽的~
Revit中文网作为国内知名BIM软件培训交流平台,几十万Revit软件爱好者和你一起学习Revit,不仅仅为广大用户提供相关BIM软件下载与相关行业资讯,同时也有部分网络培训与在线培训,欢迎广大用户咨询。
网校包含各类BIM课程320余套,各类学习资源270余种,是目前国内BIM类网校中课程最有深度、涵盖性最广、资源最为齐全的网校。网校课程包含Revit、Dynamo、Lumion、Navisworks、Civil 3D等几十种BIM相关软件的教学课程,专业涵盖土建、机电、装饰、市政、后期、开发等多个领域。
需要更多BIM考试教程或BIM视频教程,可以咨询客服获得更多免费Revit教学视频。
转载请注明来源本文地址:https://www.tuituisoft/blog/11392.html