配筋图显示了特定结构或构件中所有加强元素的位置。具体的混凝土施工图绘制方法多种多样,而且不同国家甚至不同设计公司都有各自的绘图风格。
Revit中的钢筋带有可以通过预定义的、用于读取钢筋设置的标签(族)来读取内容的特性,Revit能够自动对其进行标记,您也可以手动标记。
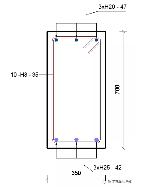
多钢筋的标注显著改善了钢筋详图设计的流程。多钢筋的标注使您可以通过一条注释对多根钢筋和钢筋设置进行标记。

您可以通过这些多钢筋的标注,标记某一项钢筋设置中的每根包含以制造和建设所的详细注释的钢筋,由于这项功能,图纸的绘制生成变得顺利很多,生产率也能大幅提高。

如果您想在Revit中使用这项功能,您需要进入Annotate(标注)选项卡->标记面板,在Multi-Rebar(多钢筋)下,您可以发现如下两个工具:
AlignedMulti-RebarAnnotation(对齐的多钢筋标注)
LinearMulti-RebarAnnotation(线型多钢筋标注)

一旦运行其中某个工具,您只需选择钢筋设置或者个别钢筋,就可以对它们进行单一化标注。像别的选项卡一样,您也可以修改多根钢筋的标注。
多根钢筋标注族属于Revit的系统族。在TypeProperties(类型属性)中,您可以找到易于配置和调整的标记族和尺寸风格。


(文章来源:http://blogs.autodesk.com/bim-and-beam/2017/06/08/multi-rebar-annotation-revit/)
Revit中文网作为国内知名BIM软件培训交流平台,几十万Revit软件爱好者和你一起学习Revit,不仅仅为广大用户提供相关BIM软件下载与相关行业资讯,同时也有部分网络培训与在线培训,欢迎广大用户咨询。
网校包含各类BIM课程320余套,各类学习资源270余种,是目前国内BIM类网校中课程最有深度、涵盖性最广、资源最为齐全的网校。网校课程包含Revit、Dynamo、Lumion、Navisworks、Civil 3D等几十种BIM相关软件的教学课程,专业涵盖土建、机电、装饰、市政、后期、开发等多个领域。
需要更多BIM考试教程或BIM视频教程,可以咨询客服获得更多免费Revit教学视频。
转载请注明来源本文地址:https://www.tuituisoft/blog/12206.html