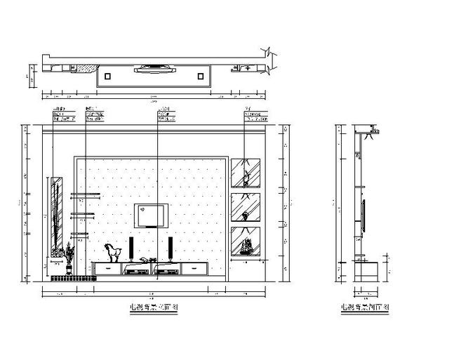
本文将介绍如何优化CAD绘制电视柜立面图的步骤。优化CAD绘制电视柜立面图可以提高绘图效率和准确度,节省时间和精力。

步骤一:收集必要的信息
首先,收集绘制电视柜立面图所需的必要信息,包括电视柜的尺寸、材料、颜色等。确保准确获得这些信息,以便在绘图过程中能够正确应用。

步骤二:选择合适的CAD软件
选择一款合适的CAD软件来绘制电视柜立面图。目前市场上有许多CAD软件可供选择,如AutoCAD、SketchUp、SolidWorks等。根据自己的需求和熟悉程度选择合适的软件。
步骤三:绘制基本轮廓
在CAD软件中,使用线段工具绘制电视柜立面图的基本轮廓。根据收集到的尺寸信息,在CAD软件中准确绘制出电视柜的外形轮廓。确保线段的长度和角度准确无误。
步骤四:绘制细节
根据电视柜的设计,使用CAD软件中的绘图工具绘制电视柜的细节,如门、抽屉、搁板等。确保细节的位置和尺寸与实际设计一致。
步骤五:添加尺寸标注
在CAD软件中,添加尺寸标注以指示电视柜的尺寸。可以使用CAD软件中的标注工具,在电视柜的各个部分上添加尺寸标注。确保标注的位置和大小合适,易于阅读。
步骤六:添加材质和颜色
使用CAD软件中的材质和颜色工具,为电视柜立面图添加适当的材质和颜色。可以根据实际材料的纹理和颜色,为电视柜的各个部分添加相应的材质和颜色。
步骤七:检查和修正
在完成电视柜立面图的绘制后,对绘图进行检查和修正。检查尺寸标注是否准确,细节是否与实际设计一致,材质和颜色是否符合要求等。如有问题,及时进行修正,确保绘图的准确性和完整性。
步骤八:保存和导出
最后,将优化后的电视柜立面图保存并导出为需要的文件格式。根据实际需要,可以选择保存为CAD文件、图片文件或PDF文件等。确保保存和导出的文件格式正确无误,方便后续使用和分享。
通过以上步骤,我们可以优化CAD绘制电视柜立面图的过程,提高绘图的效率和准确度。一步一步地进行绘制,注意每个细节的准确性和合理性,将能够得到一份高质量的电视柜立面图。
转载请注明来源本文地址:https://www.tuituisoft/blog/12207.html