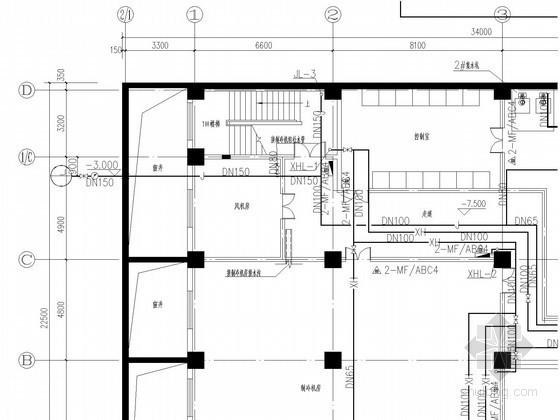
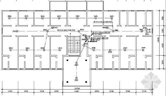
本文旨在探讨如何优化CAD消防图纸设计。消防图纸是建筑工程中至关重要的一部分,它们需要准确地反映建筑物的消防系统,以确保在火灾发生时人员的安全。CAD技术的发展使得消防图纸的设计变得更加高效和精确。然而,优化CAD消防图纸设计仍然是一个挑战,本文将介绍一些关键的方法和技巧。

1.合理布局消防设备
消防图纸的设计需要将消防设备合理布局,以确保火灾发生时能够迅速有效地进行灭火。在CAD软件中,可以使用分层设计来模拟建筑物的空间结构,包括楼层、隔墙、楼梯等。通过将消防设备放置在适当的位置,如消防栓、灭火器、喷淋系统等,可以提高灭火效率。

2.标注清晰明确
消防图纸必须具备清晰明确的标注,以便建筑师、工程师和消防人员能够准确理解和执行图纸上的要求。在CAD软件中,可以使用不同的线型、颜色和字体来区分不同的标注内容。例如,使用红色线条表示消防设备的位置,使用绿色线条表示疏散通道等。此外,还可以使用箭头、圆圈等图形来强调某些重要的标注。
3.使用符号库
为了提高CAD消防图纸设计的效率,可以使用符号库来快速引入标准的消防图标。符号库是一组预定义的图形元素,可以简化绘图过程。CAD软件通常提供了标准的消防符号库,包括消防器材、安全标识、疏散通道等。使用符号库可以节省时间和精力,同时确保图纸的一致性和准确性。
4.考虑可扩展性
在CAD消防图纸设计中,应该考虑到建筑物的可扩展性。即使当前的消防设备满足了消防要求,但随着建筑物的扩建或改造,消防系统可能需要进行调整。因此,在设计消防图纸时,应该预留足够的空间和接口来容纳未来的消防设备。
5.与其他设计文件协同
消防图纸通常是建筑项目中的一部分,需要与其他设计文件进行协同。例如,结构图、电气图、给排水图等。在CAD软件中,可以使用不同的图层来表示不同的设计文件。通过将消防图纸与其他设计文件进行协调,可以发现并解决不同设计之间的冲突和矛盾,确保消防系统与其他系统之间的兼容性。
总结
CAD消防图纸设计的优化是确保建筑物消防系统可靠性与安全性的关键。通过合理布局消防设备、标注清晰明确、使用符号库、考虑可扩展性和与其他设计文件协同,可以提高CAD消防图纸设计的效率和质量。随着技术的不断发展,CAD消防图纸设计将继续朝着更加智能化和精确化的方向发展。
转载请注明来源本文地址:https://www.tuituisoft/blog/12251.html