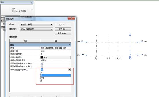
Revit轴网有一项“非平面视图符号”功能,可以在立面视图中快速控制垂直方同轴网轴号显示。下图是选“底”的效果。

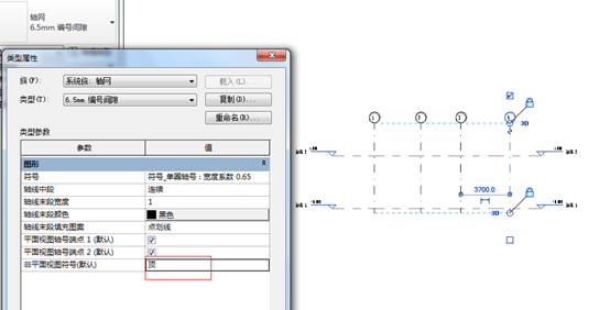
下图是选“顶“的效果。

平面绘制轴网之前设定其轴网类型参数即可快速调整其在立面显示效果。
转载请注明来源本文地址:https://www.tuituisoft/blog/13936.html
Revit轴网有一项“非平面视图符号”功能,可以在立面视图中快速控制垂直方同轴网轴号显示。下图是选“底”的效果。

下图是选“顶“的效果。

平面绘制轴网之前设定其轴网类型参数即可快速调整其在立面显示效果。
转载请注明来源本文地址:https://www.tuituisoft/blog/13936.html