
Revit中创建多个房间、删除房间等都需要用到房间分隔功能,现在教您使用房间分隔功能,快速完成房间分隔。
01、点击房间分隔功能

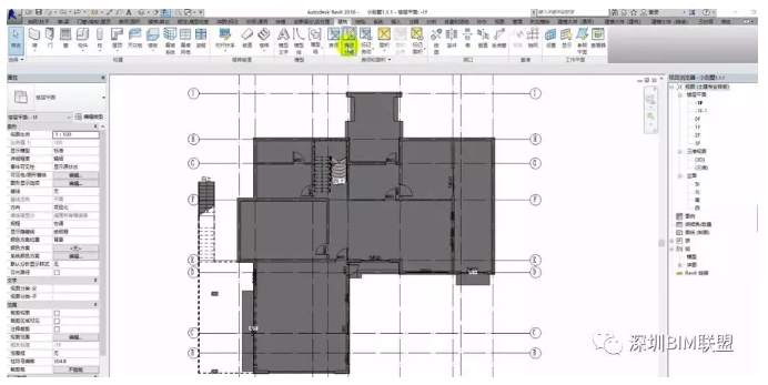
1)打开一个项目并点击建筑选项卡中的“房间分隔”功能
2)选定功能之后会自动进入绘制功能,这时可以开始绘制
02、这画分隔线

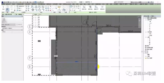
1)使用“房间分隔线”工具可添加和调整房间边界
2)在需要房间分隔的位置画出一条分隔线
3)并按Esc键退出绘制功能
03、点击房间功能

1)点击建筑选项卡中的“房间”功能
2)点击已分隔出来的两个房间按Esc键退出功能
3)鼠标左键双击房间可以修改名称
以上是Revit房间分隔功能的介绍,您学会了吗?关注我们,学习更多BIM知识。
转载请注明来源本文地址:https://www.tuituisoft/blog/14430.html