全面收集的CAD建筑平面图图片是一项非常重要的工作,它为我们提供了各种建筑的平面图,使得我们能够更好地了解建筑的结构和设计。这些CAD建筑平面图图片以其精确的细节和清晰的展示方式而备受赞赏。

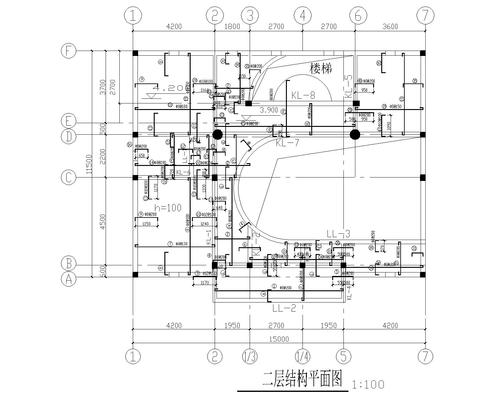
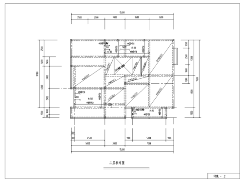
CAD建筑平面图是通过计算机辅助设计软件创建的,它们通过使用先进的技术和工具来确保准确性和可视化效果。这些平面图可以包含建筑物的各个方面,例如墙壁、门窗、楼梯、电线和管道等。它们提供了宏观和微观层面的信息,使得建筑师、设计师和施工人员能够更好地理解和规划建筑项目。
借助CAD建筑平面图图片,我们可以更好地理解建筑物的布局和空间安排。这些平面图可以准确地显示建筑物的尺寸、比例和比例关系,以及各个房间、走廊和其他功能区域的位置和关系。这有助于我们在规划和设计建筑项目时优化空间使用,并确保各个功能区域的相互关联性和有效性。
此外,CAD建筑平面图图片还可以用于建筑项目的施工和维护。施工方可以使用这些平面图来了解建筑物的具体细节和位置,以便正确地安装和组装各个组件。维护人员可以使用这些平面图来定位和解决建筑物中的问题,例如管道堵塞或电线故障。

总的来说,全面收集的CAD建筑平面图图片对于建筑行业和相关领域非常重要。它们为我们提供了详细和准确的建筑信息,帮助我们更好地规划、设计、施工和维护建筑项目。通过使用这些平面图,我们可以优化空间使用、提高工作效率,并确保建筑物的安全和持久性。
转载请注明来源本文地址:https://www.tuituisoft/blog/14747.html