Revit族类型属性锁定尺寸标注(参数)的作用。这范围波及的就有些广泛了,我们先了解以下几点内容。

首先是锁定参数的作用。
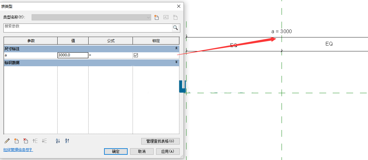
族类型属性面板的锁定参数与我们在平立三维视图中添加的参数相关联,只要在类型属性单个参数打勾并确定,那么在平立三维视图中相对应的参数也会锁定,视图中锁定参数也会与族类型属性关联,请往下查看视图。

一旦锁定参数,那么这个参数将会固定在原先的数值上,无法修改,除非将锁定打开即可修改。这就有了“死族”与“活族”之分.
“死族”:就是在使用过程中无法在项目当中变换族参数值,只能以一种形态在项目中存在,很多工程师喜欢运用这种办法,因为创建简单便捷。
“活族”:可在项目中根据所绘制的尺寸参数变换着长宽高,同一个类型可分衍出多个不同形态。
那么什么时候该点击锁定参数。
有时候为什么绘制族时要锁定参数?可以不锁定么?可以很负责的和你说,锁定参数可以大大减少参数所控制的构件不会出现偏移,当然还有一点就是只要你锁定参数,参照线或者构件在不进行选择移动工具,直接拖动也不会将你绘制的族变形。
转载请注明来源本文地址:https://www.tuituisoft/blog/7957.html