Revit图纸是施工图文档集的一个独立的页面。在Revit中,为施工图文档集中的每个图纸创建一个图纸视图。然后在每个图纸视图上放置多个图形或明细表。
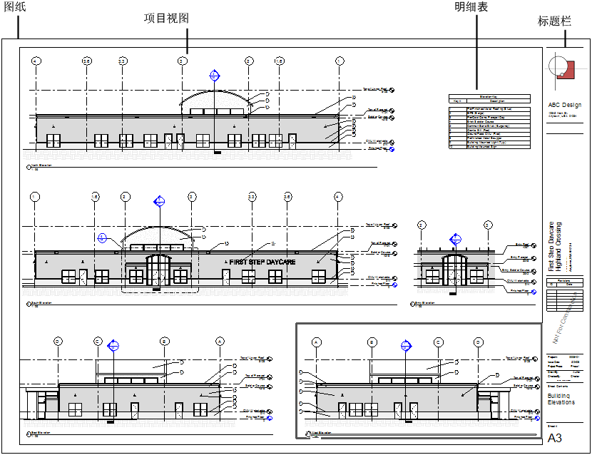
图纸的某些部分

图纸的某些部分

将图纸添加到 Revit 项目中时,这些图纸会列在项目浏览器中的“图纸(all)”下。
图纸会列在项目浏览器中

图纸会列在项目浏览器中

将图形或明细表移到图纸上时,会显示视口。视口是放置到图纸上的图形或明细表的表示。
Revit数字开通集
一些建筑师使用卡通集来规划项目的文档要求。卡通集是您希望包含在施工图文档集中的图纸和要在每个图纸上显示的图形、明细表或其他信息的一个粗略平面。
通过创建卡通集,可以确保最终的施工图文档集包含所有需要的信息。还可以使用此方法确保施工图文档集满足您的组织所建立的标准。
借助 Revit,可以创建数字卡通集。首先在项目中添加需要的视图(图形和明细表),并绘制建筑模型的基本设计。在项目中添加所需的图纸,并给予它们适当的名称和编号。然后在适当的图纸中添加这些视图。如果需要,可以立即设置视图比例、标题和其他属性,这样生成的图纸会使用所需的设置。
尽管这些视图和图纸还没有显示完整的设计,但是它们提供了项目的总体结构。在项目视图中开发建筑模型时,明细表会相应地更新,且图纸会显示所需的信息。此技术简化了项目文档的处理过程。
创建反映企业标准或某个典型项目设置的数字卡通集时,可以使用项目创建项目样板。

Revit项目样板图纸
创建项目样板时,可以在样板中包含图纸。以一个空白项目文件开始,并创建每个项目都应包含的标准视图和标高。保留这些视图为空,但为它们指定标准名称。要创建施工图文档的标准集,请使用所需的标题栏创建图纸。使用所需的视口样板和视图标题类型,在图纸中添加视图。然后将空项目另存为一个项目样板。
使用该项目样板创建项目时,在项目浏览器中已创建并列出了所有视图和图纸。开始在项目视图中绘制建筑模型时,图纸上的视图会自动更新。此技术简化了项目文档的处理过程以及保持了组织标准。
转载请注明来源本文地址:https://www.tuituisoft/blog/8129.html