文章来源:启安贝姆 杨海军

1)选中需要调整的桥架

2)在修改选项中的拆分图元,使其调整的桥架分段。


3)创建剖面,在剖面框右击转到视图。如图示。


4)在剖面视图中调整桥架高度,鼠标转动选择需要的角度弯头,翻弯完成。如图示。



转载请注明来源本文地址:https://www.tuituisoft/blog/8592.html
文章来源:启安贝姆 杨海军

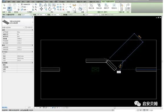
1)选中需要调整的桥架

2)在修改选项中的拆分图元,使其调整的桥架分段。


3)创建剖面,在剖面框右击转到视图。如图示。


4)在剖面视图中调整桥架高度,鼠标转动选择需要的角度弯头,翻弯完成。如图示。



转载请注明来源本文地址:https://www.tuituisoft/blog/8592.html