首页/技术分享

Revit技巧 | revit如何旋转?Revit如何旋转整个项目模型视图?

发布于:2025-01-07 13:40:02
2613人 分享

    文章来源:BIMproject 王冯聪

image.png

    导入到Revit中的CAD图纸是倾斜的,我们需要把Revit模型整体旋转时,可以采用“旋转正北”工具来实现,(注:项目北是为了建模或者设计时候,方便工程师的操作将模型以上北下南、左西右东的方式显示视图;正北是项目与总图或者说实际地理位置的实际方向坐标)。

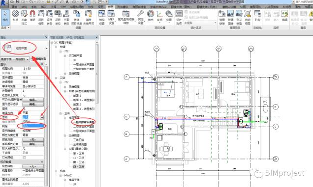
    1.打开项目平面视图,在楼层平面“属性”栏中,将“方向”修改为“正北”,然后单击“应用”;

image.png

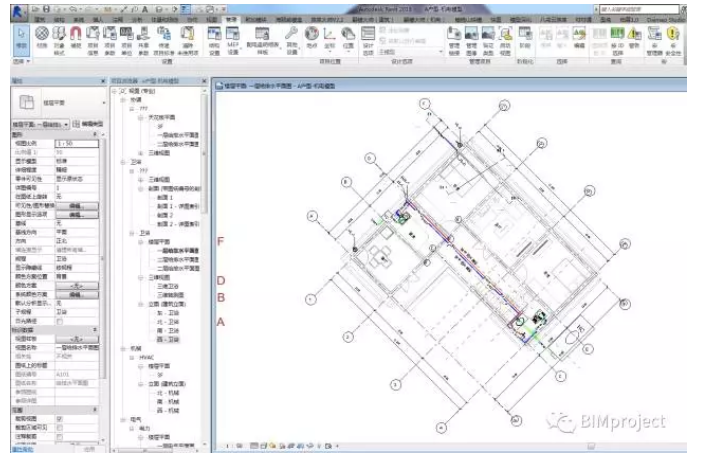
    2.单击“管理”选项卡“项目位置”面板,选择“位置”下拉列表下的“旋转正北”命令,在选项栏上,输入一个值作为“从项目到正北方向的角度”以设置旋转角度。

image.png

    (或者鼠标点击选择起点,输入旋转角度值再次点击完成旋转操作)

image.png

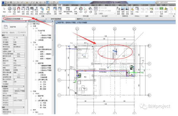
    3.还有一个方法可以快速的对项目进行旋转操作,在楼层平面“属性”栏中,将“方向”修改为“正北”,然后点击视图属性栏的“显示隐藏的图元”命令,找到被隐藏的“项目基点”;

image.png

    修改项目基点“到正北的角度”值即可旋转模型视图;

image.png

    (注:将视图旋转到“正北”方向可以确保自然光照射在建筑模型的正确位置,并确保正确地模拟太阳在天空中的路径)


    Revit中文网作为国内知名BIM软件培训交流平台,几十万Revit软件爱好者和你一起学习Revit,不仅仅为广大用户提供相关BIM软件下载与相关行业资讯,同时也有部分网络培训与在线培训,欢迎广大用户咨询。

    网校包含各类BIM课程320余套,各类学习资源270余种,是目前国内BIM类网校中课程最有深度、涵盖性最广、资源最为齐全的网校。网校课程包含Revit、Dynamo、Lumion、Navisworks、Civil 3D等几十种BIM相关软件的教学课程,专业涵盖土建、机电、装饰、市政、后期、开发等多个领域。

    需要更多BIM考试教程或BIM视频教程,可以咨询客服获得更多免费Revit教学视频

l  BIM培训网校课程目录

l  Revit零基础培训教程

l  BIM项目实战训练营



转载请注明来源本文地址:https://www.tuituisoft/blog/11568.html

上一篇:

Revit技巧 | revit连接类型如何设定?Revit如何设置首选连接类型?

下一篇:

Revit技巧 | revit怎么布吊顶?Revit如何创建吊顶