本文将围绕着“路灯在CAD图纸中的图标是什么?”这个问题进行详细的说明。在CAD(计算机辅助设计)软件中,路灯作为城市规划和建筑设计中常见的元素之一,其图标起到了标识和表示的作用。了解路灯在CAD图纸中所使用的图标,对于工程设计人员和城市规划师来说是非常重要的。

CAD软件简介
CAD(Computer-Aided Design)即计算机辅助设计,是近年来广泛应用于各个领域的设计工具之一。它以计算机技术为基础,利用各种绘图和建模功能,辅助设计师和工程师进行建筑、机械、电子等方面的设计工作。CAD软件的使用方便、效率高,成为现代设计工作中不可或缺的工具。

路灯在城市规划和建筑设计中的重要性
路灯在城市规划和建筑设计中扮演着重要的角色。随着城市化进程的加速,越来越多的城市需要进行规划和建设,其中路灯作为城市公共设施的一部分,不仅起到照明作用,还对于城市的整体形象和居民的安全起着至关重要的作用。在城市规划中,路灯的布置和设计需要考虑到交通流量、行人安全、视觉效果等多个因素,因此,在CAD图纸中准确表示路灯的位置和类型非常重要。
路灯的CAD图标
在CAD图纸中,路灯通常以特定的图标来表示。这个图标通常根据实际的路灯形状和特征进行设计,以便工程设计师和城市规划师能够准确地识别和理解。不同的CAD软件可能对于路灯图标的设计有所不同,下面是一些常见的路灯图标示例:
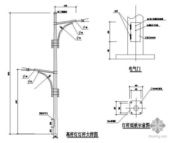
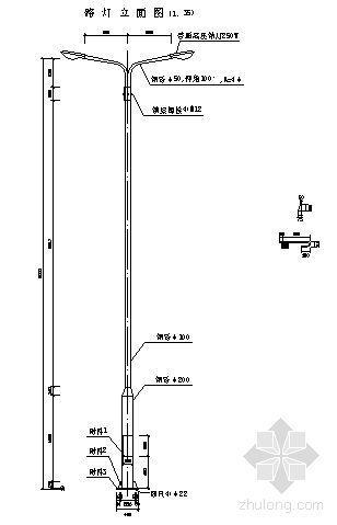
1. 立杆路灯图标
立杆路灯是一种常见的路灯类型,其图标通常由一个直立的杆和顶部的灯具组成。这个图标简洁明了,能够清晰地表示路灯的位置和形状。
2. 投光灯路灯图标
投光灯路灯是一种常用于照明特定区域的路灯,其图标通常由一个杆和杆顶的投光灯组成。这个图标可以清楚地表示路灯的位置和照明方向。
3. 路灯组图标
路灯组是由多个路灯组成的照明设施,其图标通常由多个灯具和连在一起的杆组成。这个图标能够准确地表示路灯组的位置和形状。
4. 路灯框架图标
在某些CAD软件中,路灯的图标可能只是一个简单的框架,用于表示路灯的位置和区域。这个图标简洁明了,能够方便地在图纸中标示出路灯。
总结
在CAD图纸中,路灯的图标可以根据不同的软件和设计需求而有所差异。这些图标的设计旨在清晰地表示路灯的位置、形状和类型,以便工程师和规划师能够准确理解和布置路灯。对于设计师和规划师来说,熟悉CAD软件中路灯图标的使用是非常重要的,它能够提高设计效率,确保设计的准确性和一致性。
转载请注明来源本文地址:https://www.tuituisoft/blog/12211.html