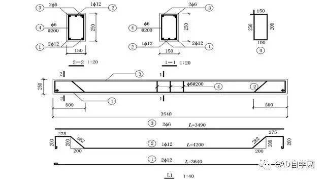
本文主要介绍了CAD绘制钢筋横断面的方法。钢筋横断面是土木工程中常见的绘图要求之一,通过CAD软件可以更加方便、准确地绘制钢筋横断面图。以下将详细介绍CAD绘制钢筋横断面的具体步骤和技巧。

步骤一:选择合适的CAD软件
首先,要选择一个适合绘制钢筋横断面的CAD软件。常见的CAD软件有AutoCAD、SketchUp、SolidWorks等。其中,AutoCAD是应用最广泛的CAD软件之一,具有丰富的绘图功能。根据自己的需求和操作习惯,选择一个合适的CAD软件。

步骤二:准备绘图资料
在绘制钢筋横断面之前,需要准备绘图所需的资料。这些资料一般包括设计图纸或设计要求、钢筋的规格和数量、结构尺寸等。如果有必要,还可以进行现场勘测,获取更准确的数据。准备充分的绘图资料可以提高绘制效率,保证绘图的准确性。
步骤三:创建绘图文件
打开CAD软件后,创建一个新的绘图文件。根据绘图所需比例,设置绘图文件的单位和尺寸。如需绘制具体大小的图形,可以按照实际比例设置尺寸。同时,根据设计要求,选择合适的图层和线型。
步骤四:绘制主体结构
根据设计图纸或设计要求,在CAD软件中绘制主体结构。主体结构包括梁、柱、墙等各个构件的轮廓线。可以使用绘图工具,如直线、圆弧、多段线等,根据设计要求绘制各个构件的形状。在绘制时,可以根据需要添加对称线或辅助线,以帮助绘图。
步骤五:绘制钢筋布置图
在主体结构绘制完成后,根据设计图纸或设计要求绘制钢筋布置图。钢筋布置图中包括钢筋的直径、间距、起止位置等信息。可以使用绘图工具,如多段线、圆形等,绘制符号表示钢筋的位置和布置形式。在绘制时,可以利用CAD软件的复制、镜像等功能,快速绘制相同形状的钢筋布置。
步骤六:添加文字和注释
在钢筋横断面图上添加必要的文字和注释,可以更加清晰地表达绘图意图。文字和注释内容可以包括结构尺寸、钢筋规格、构件编号等。可以使用CAD软件提供的文字工具,选择合适的字体和字号,添加文字和注释。在添加文字时,要注意文字的对齐和居中,以保证绘图的美观和清晰。
步骤七:修饰图纸
在绘图完成后,可以对图纸进行修饰,提高绘图的可读性和美观度。可以添加边框、标题、比例尺等信息。可以使用CAD软件提供的修饰工具,选择合适的图形和样式,进行修饰。在修饰图纸时,要注意不要过度修饰,以免影响图纸的清晰度和易读性。
步骤八:保存和输出图纸
在绘图完成后,保存绘图文件,以便后续修改和查看。同时,可以选择将图纸输出为图片或PDF文件,方便打印或传输。在输出图纸时,可以选择合适的分辨率和纸张大小,以满足实际需求。
通过以上步骤,就可以完成CAD绘制钢筋横断面的过程。绘图时要注意绘图准确性和美观度,同时根据实际需求选择合适的绘图比例和图纸大小。掌握CAD绘图的基本操作和技巧,可以提高绘图效率,减少错误。
转载请注明来源本文地址:https://www.tuituisoft/blog/12385.html