来源:施加咨社

像这种坡屋顶我们可以观察到,它的屋顶轮廓都是带有坡度的,那我可以通过添加定义坡度的方式来绘制出该屋顶。

点击建筑选项卡中的屋顶按钮,选择迹线屋顶。

选择使用拾取线工具,在选项栏中将偏移值修改为500。

拾取墙边缘将屋顶迹线绘制出来。

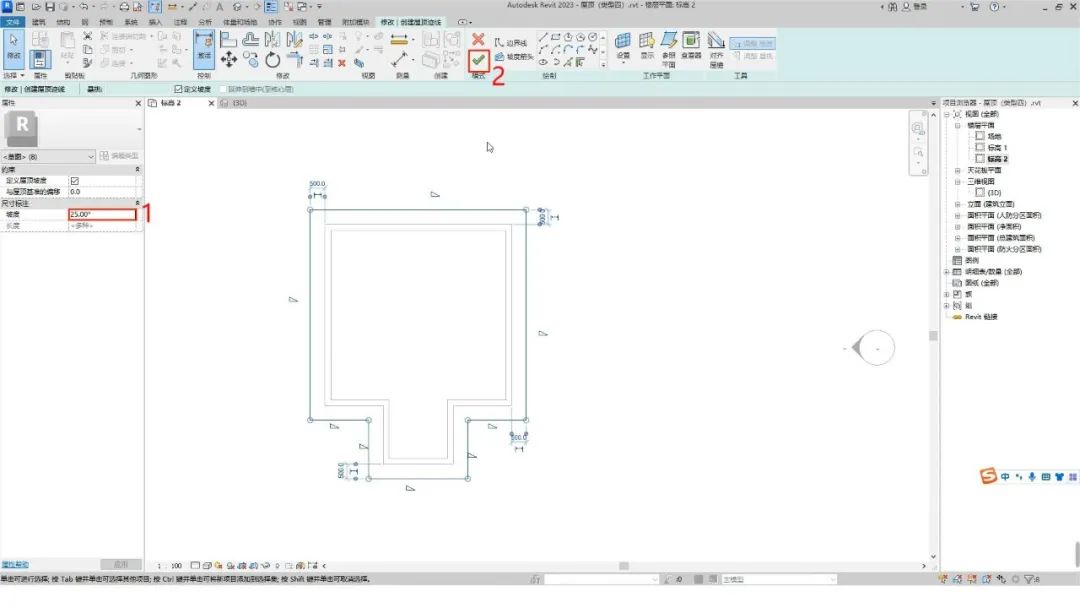
选中所有线,添加坡度值为25°,然后再点击完成按钮,

切换到三维视图观察一下。完成

转载请注明来源本文地址:https://www.tuituisoft/blog/10461.html
上一篇:
来源:施加咨社

像这种坡屋顶我们可以观察到,它的屋顶轮廓都是带有坡度的,那我可以通过添加定义坡度的方式来绘制出该屋顶。

点击建筑选项卡中的屋顶按钮,选择迹线屋顶。

选择使用拾取线工具,在选项栏中将偏移值修改为500。

拾取墙边缘将屋顶迹线绘制出来。

选中所有线,添加坡度值为25°,然后再点击完成按钮,

切换到三维视图观察一下。完成

转载请注明来源本文地址:https://www.tuituisoft/blog/10461.html