1、双击运行revit程序,打开revit后出现如图所示的界面,点击族下面的新建按钮,如图所示

2、点击新建按钮弹出的对话框中选择创建族模板的公制常规模型,然后点击打开,如图所示:

3、点击创建按钮---参照平面---点击拾取线---在偏移量栏位里输入数量(如:500)然后鼠标移动到原有的参照线上,它会以原有的参照线为中心线,复制相同长短的参照线,鼠标指向那条参照线,它就以那条参照线为中心线来复制,如图所示:

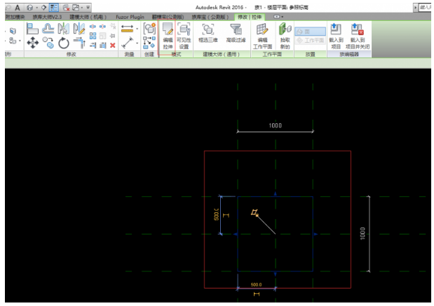
4、把所有的参照线画完,然后点击注释里的对齐命令,把参照线都标注上距离,如图所示:

5、点击创建命令---拉伸命令---选择矩形,画一个正方形,然后点击对号完成,如图所示:

6、点击 三维视图按钮,调整为着色出现以下界面,如图所示:

7、选中物体,在深度里改数值,能改变它的高度,如图所示:

8、视图转到参照标高,选中物体,然后点击编辑拉伸按钮,如图所示:

9、在偏移量栏位上填写数值(如:200),再点击拾取线命令?,然后鼠标点击空白处一下,然后鼠标箭头放到线上出现虚线后点击Tab键就会复制一个正方形,点击对号就完成了,点击三维视图出现以下界面,如图所示:

10、点击图中的物体,选择编辑拉伸,删除里面的图形线,然后点击三维视图按钮,如图所示

11、在三维图中标注,选择对齐尺寸标注,然后选择一个面,再选择另一个面,就完成了在三维视图中添加标注,在三维视图中添加标注的用途是通过标注控制参数,如图所示:

12、选中数字,然后点击标签栏位的添加参数,出现以下参数属性对话框,在名称栏位上填写参数的名称(长度:L)点击确定,第一个长度的参数就完成了,如图所示:


13、给第二个长度添加参数,可以选中数字,然后在标签栏位哪里选中刚刚编辑的参数,另一个长度参数就完成了,如图所示:

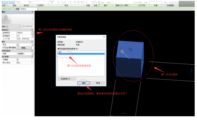
14、立体图形高度添加参数的方法:选中图形,点击拉伸终点后面的按钮 ,就会出现以下对话框,选择族现有参数(L),这样的话,只要一方数字改动,全部都会跟着改动,如图所示:

转载请注明来源本文地址:https://www.tuituisoft/blog/11079.html