文章来源:学天BIM学院

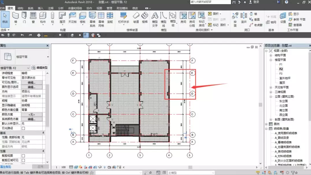
木仔给大家教学了如何在Revit三维中快速观看某楼层模型,后来有学员私信木仔,想知道为什么三维视图能看见屋顶,但是这个屋顶在F2楼层平面中却看不见?


其实这个是因为F2视图范围设置的原因!
本期就教给大家如何修改视图范围
在revit中如何调整视图范围?
1、进入F2楼层平面,在属性栏里找到并点击“范围”里的“视图范围”。

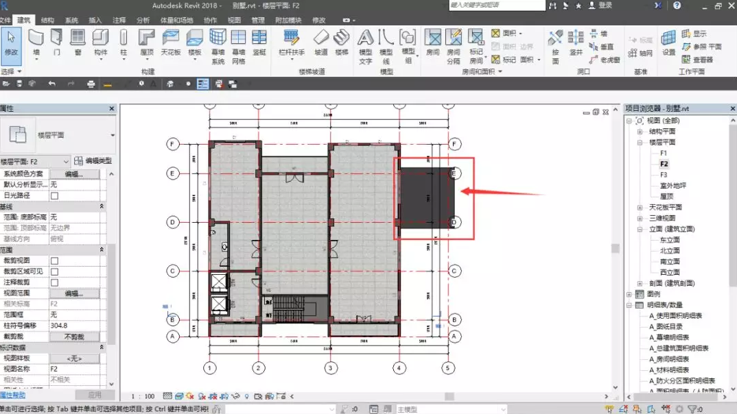
2、将“视图深度”里的标高偏移改为任意负值,点击确定。



这样这个屋顶就会在F2楼层平面里显示出来了
注意:剖切面之下的所有构件一定都看得见。
Revit中文网作为国内知名BIM软件培训交流平台,几十万Revit软件爱好者和你一起学习Revit,不仅仅为广大用户提供相关BIM软件下载与相关行业资讯,同时也有部分网络培训与在线培训,欢迎广大用户咨询。
网校包含各类BIM课程320余套,各类学习资源270余种,是目前国内BIM类网校中课程最有深度、涵盖性最广、资源最为齐全的网校。网校课程包含Revit、Dynamo、Lumion、Navisworks、Civil 3D等几十种BIM相关软件的教学课程,专业涵盖土建、机电、装饰、市政、后期、开发等多个领域。
需要更多BIM考试教程或BIM视频教程,可以咨询客服获得更多免费Revit教学视频。
转载请注明来源本文地址:https://www.tuituisoft/blog/11764.html