“视图名称”与“图纸上标题”的区别
问题:如何区分“视图名称”与“图纸上的标题”的区别?
(1)“视图名称”指的是视图的命名,它显示在左面的“项目浏览器”中,如图1所示。

图-1
(2)如果将视图拖拽到图纸上后,在未做任何改动的情况下图纸上显示的标题和视图原有的“视图名称”是相同的,如图2所示。

图-2
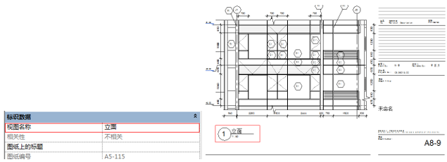
(3)点击视图名称在“属性”中将“视图名称”改为“立面”,那么项目浏览器中相应的视图名称也发生改变,如图3所示。

图-3
(4)此外更改图纸上的标题,左面项目浏览器中相应视图名称不发生变化,但图纸上的标题发生改变,如图4所示。

图-4
(5)“视图名称”具有唯一性,也就是说不能有两个相同的视图名称,而不同视图的“图纸上的标题”可以相同也可以不同。
(6)在图纸A5-115和图纸A5-110中,两个不同的视图显示了相同的名称“立面 ELEVATION” ,如图5所示。


图-5
转载请注明来源本文地址:https://www.tuituisoft/blog/13565.html