这次的技巧,是在模型中使用钢筋编号和分区。在我们学习在模型中使用之前,先快速了解一下可用于明细表和注释的钢筋编号。
钢筋图元在放置时进行编号,编号允许相同的钢筋图元对于明细表和标记匹配。
在指定的分区中,钢筋、钢筋网和钢筋接头编号与具有相同类型、尺寸、材质和形状的钢筋匹配。以下剖面视图中的标记显示了此编号匹配关系。

钢筋图元的编号可能显示在“属性”选项板的“标识数据”下。钢筋、钢筋网片和钢筋接头将在项目中保持单独的编号序列。
您可以计划、计数和标记钢筋数。

注:您可以从项目中删除钢筋图元,钢筋编号将被保留,除非使用“钢筋编号”对话框中的“删除间隙”工具明确更改。

1.在“属性”选项板中查看钢筋或织物图纸编号。
2.将分区指定给钢筋。
3.过滤钢筋分区和编号。
4.使用“钢筋编号”对话框中的“过滤器”分区字段。
5.使用“钢筋编号”对话框来调整钢筋和钢筋网编号序列。

钢筋标识的编号根据建筑的设计方式或构建方式具有各种组织目的。钢筋图元在放置时进行编号,从而允许对明细表和标记匹配相同图元。如果更改钢筋或将钢筋指定给其他分区,则钢筋编号可能会基于新分区的匹配策略和设置而更改。
在指定的分区中,钢筋和钢筋网编号与具有相同类型、尺寸、材质和形状的钢筋匹配。您可以在“构造”下的“属性”选项板中查看这些编号。此剖面视图中的标记显示了此编号匹配关系的简化。如果更改类型,则形状、大小或材质也会更改编号。
在放置钢筋或钢筋网片之前,可以指定分区。从现有分区中选择,或键入分区名称以创建一个分区。如果已放置钢筋,您可以选择它,然后以类似方式指定一个分区。

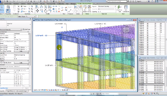
可以过滤钢筋分区和编号、将其列入明细表并将其用作标签类别。这通常有助于参照要交付的钢筋类型、交付位置和交付量。在此结构中,基于标高和区域的九个分区已过滤为以不同颜色显示钢筋。现在放置钢筋时,如果钢筋未指定到正确的分区,这一点会相当明显。
使用“钢筋编号”对话框来调整钢筋或钢筋网片编号序列。过滤器分区字段可缩小对话框中显示的编号序列范围。按需为每个序列指定第一个数字,并为编号序列指定最小位数。更新的编号方案将传递到明细表和标记。此外,观察序列中出现编号间隙的位置。这些用星号表示。通过重新编号序列将其删除。
钢筋现场的设计、排序、制造、阶段化、存储和最终放置位置都会对承包商的量化需求产生影响。
转载请注明来源本文地址:https://www.tuituisoft/blog/14824.html