背景
如果不借用插件,在 Revit 中添加管道的支吊架是比较废时废力的,而就算用现在市面上的一些插件来自动布置多管的综合支架也不尽善尽美,这里用 Dynamo 就这个问题提供一个解决的思路。
思路
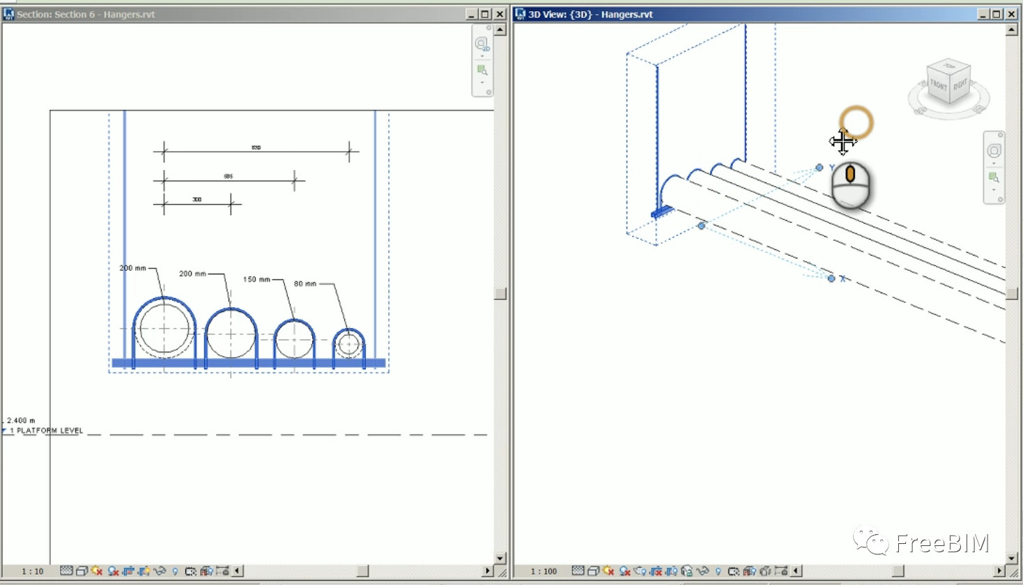
这里我采用的支吊架分三个部分(横担,U型管卡、丝杆),我打算让这三个部分各自做为一个族载入到项目中以便使用和统计,当然为了让他们成为一个整体方便复用可以把三者成组。那么我们先让管道底平齐,然后获取底平标高和管道位置把横担放上去,基本上同样的方法再把丝杆放上去,再获取每个管道的属性提取出其管径和位置再把U型管卡放上去,最后再将三部分成组即可。

方法
1、首先,我们先让管道底平齐,这时我们需要提取出所选管道的直径,外径,保温厚度和水平高度,用这些值我们可以计算出每个管道底部高程,确定是以最大管为基准还是以最小管为基准;

2、然后,开始放置横担吧,我们需要找到横担正确的插入点,要得到这一点,我们需要计算两个最外边管道中心点之间的距离,将这两上管道的半径加到该值,最后为外部偏移量添加参数值。同时使用这些管道中的一个,我们便可提取方向以及该方向与Y轴之间的角度;

3、接着,便是计算丝杆的位置啦,方向基本上和找横担的位置一样;

4、之后,我们调整U型管卡的参数并放置到位;

5、最后,将这三个部分成组。

来源:FreeBIM
作者:乔永斌
转载请注明来源本文地址:https://www.tuituisoft/blog/21298.html